Sold61 Gladstone Street, Kew
Loaded with Appeal
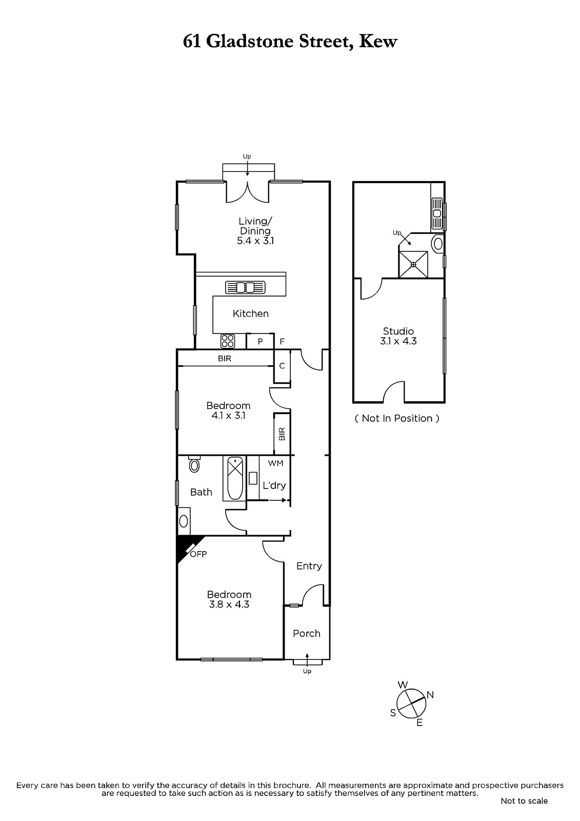
A delightful infusion of neutral tones and a contemporary makeover highlight this instantly appealing single-fronted, semi-detached brick Edwardian home c1920, which offers a light and bright, immaculately presented interior. Ideally positioned in a renowned lifestyle location close to parks, the Kew Recreation Centre, Kew Junction, transport and EastLink/CBD access - representing all that is sought-after in Kew. The interior features glossy polished timber floors, wide entrance hall opening to two double bedrooms, large central bathroom and separate laundry, and leading to an open-plan kitchen, living and dining with French doors spilling onto a paved courtyard and private leafy garden - perfect for alfresco enjoyment. The north-facing rear garden also includes a self-contained studio, which could be renovated to provide an additional living area, home office or third bedroom if desired. Other features include stainless steel appliances, ducted heating, OFP, easy-care gardens and off-street parking. A super option for young professionals or investors, given its lifestyle location.
Enquire about this property
Request Appraisal
Welcome to Kew 3101
Median House Price
$2,676,500
2 Bedrooms
$1,475,000
3 Bedrooms
$2,110,000
4 Bedrooms
$2,870,500
5 Bedrooms+
$4,680,000
Kew, positioned just 5 kilometres east of Melbourne's CBD, is renowned for its sophistication and elegance.











