Sold6 Sunhill Road, Glen Iris
Charm and Style with Potential
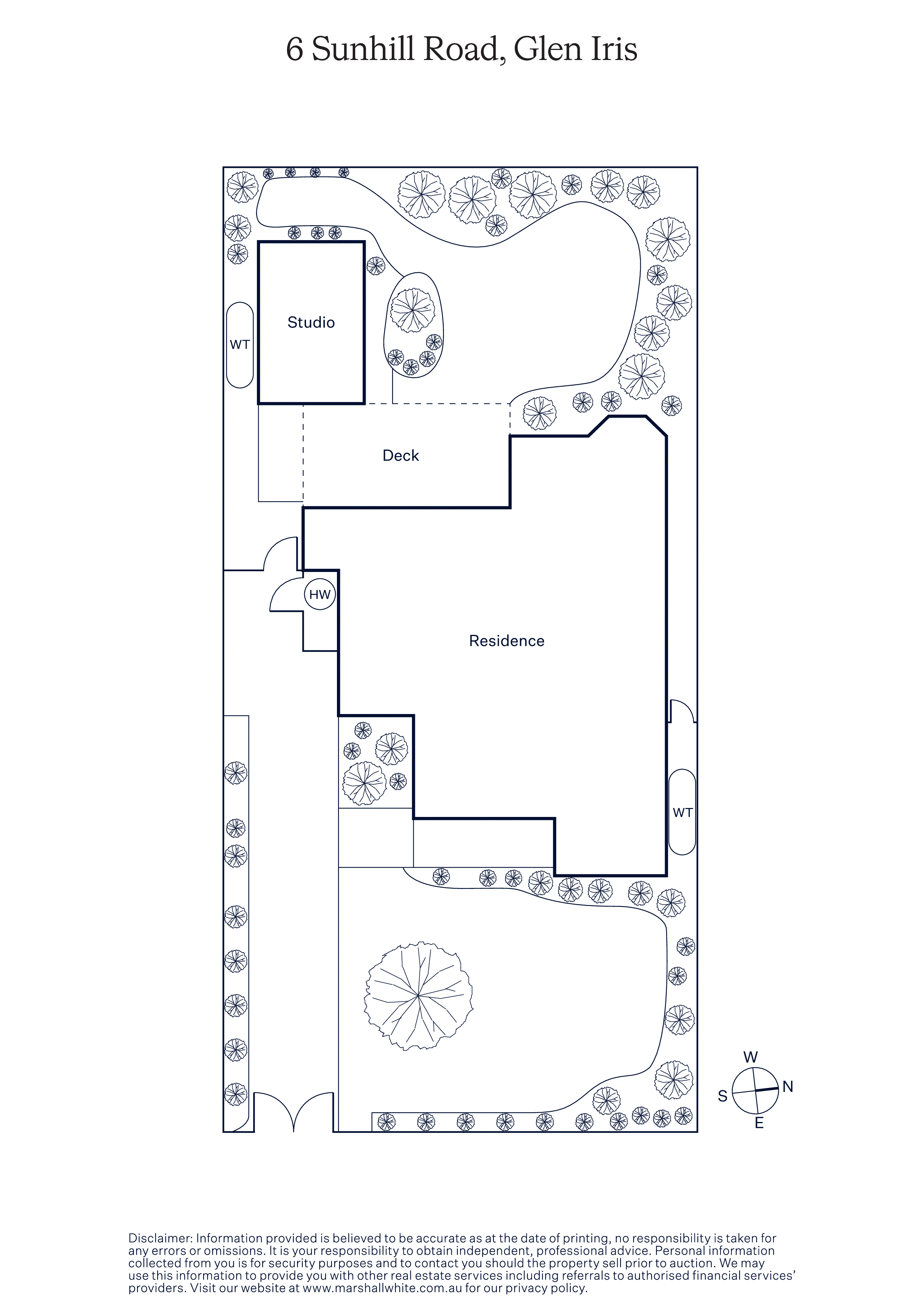
Amidst a leafy established garden in a coveted tree-lined address, this charming solid brick mid-century residence has been lovingly maintained and updated over the years to provide an enticing family environment to enjoy now while considering future options to renovate or even rebuild (STCA).
Generous proportions and natural light are the defining characteristics of the inviting living room and adjacent formal dining room. Timber floors flow through the gourmet kitchen appointed with stone benches and Smeg/Bosch appliances and the adjacent family living/dining area which opens to a large undercover deck overlooking the deep private northwest garden with a freestanding studio/home office. Enjoying garden views, the spacious main bedroom with built in/walk in robes and an en suite is matched by two additional double bedrooms with robes and a bright family bathroom.
Enviably situated close to Gardiner station, Nettleton Park, Burke Rd trams, cafes, schools, Gardiner’s Creek bike path and freeway access, it includes ducted heating, RC/air-conditioning, laundry, water tank and off-street parking. Land size: 603sqm Approx.
Enquire about this property
Request Appraisal
Welcome to Glen Iris 3146
Median House Price
$2,593,750
2 Bedrooms
$1,528,750
3 Bedrooms
$2,220,250
4 Bedrooms
$2,708,750
5 Bedrooms+
$3,823,500
Glen Iris, situated approximately 10 kilometres southeast of Melbourne's CBD, is a well-established and affluent suburb known for its leafy streets, spacious parks, and prestigious schools.



















