Sold6 Normanby Street, Brighton
Renovated Grandeur Metres from the Beach
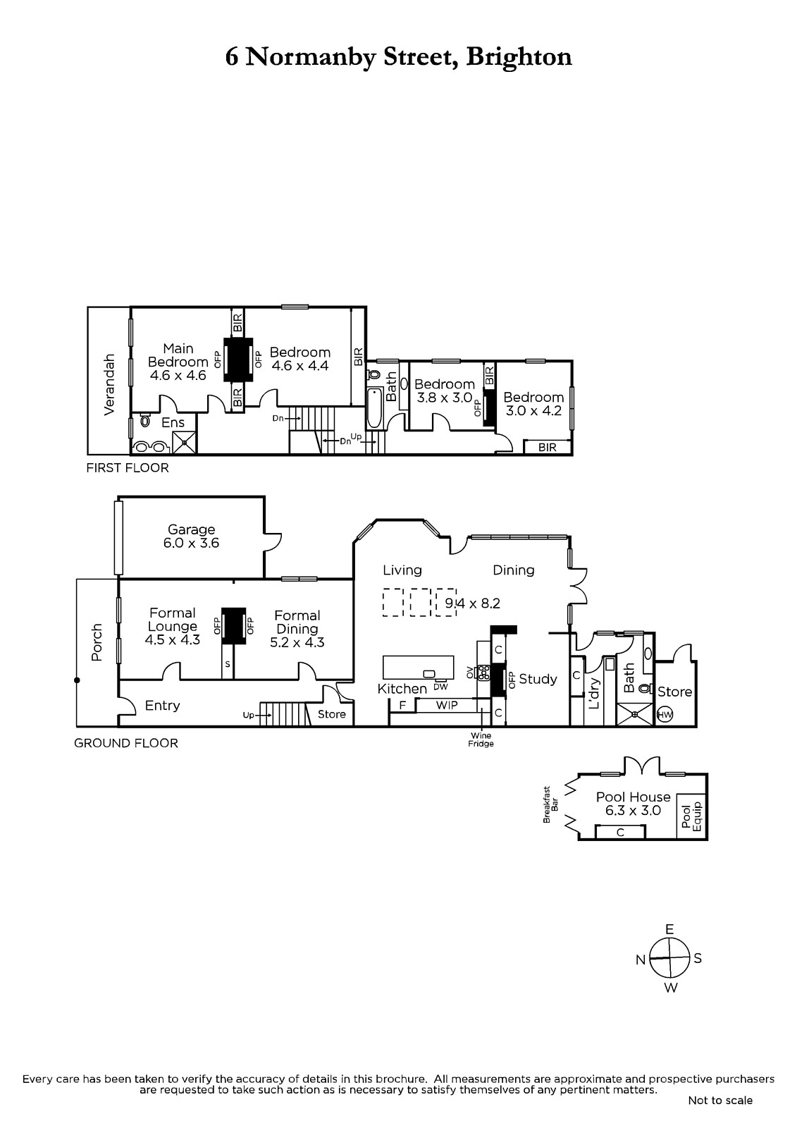
"Esperance" is a magnificent Victorian home fully renovated for a contemporary Brighton lifestyle, exclusively located four doors from the beach and metres to Church Street. Originally built as a Catholic girls' school by the sea, the original grandeur and fine craftsmanship merge with a new state-of-the-art renovation, bay view from upstairs, and beautiful Paul Bangay-designed gardens. High-ceilinged formal lounge and dining rooms are elegantly enhanced with century-old alabaster fireplaces and contemporary chandeliers, and the ornate two-way staircase and decorative plasterwork are reminders of this home's 1880's origins. What is even more spectacular is the luxury transformation. The Hamptons-style family room and meals area look out to the pool and botanical beauty created by one of Australia's finest landscape designers. Only the best finishes and features enhance the new designer kitchen with a butler's pantry, Italian-made Fisher & Paykel range, wine fridge, brass tapware and premium stone surfaces. Families will love the four-bedroom spaciousness, four living areas, and emphasis on luxury. There's a poolhouse with servery, ground-floor study or playroom, well-designed laundry/mudroom, and three bathrooms. Admire the bay and Brighton Baths from the verandah outside the beautiful main bedroom, and love living this close to the beach, Royal Brighton Yacht Club and waterfront cafes. The transformation is exquisite with dramatic linen drapes, full new exterior paintwork, and solid Tasmanian oak herringbone floors. High-fenced privacy is complemented by keycode and remote-control gate entry to the garage and off-street parking. Premium address a stroll away from Brighton Grammar, Firbank and Church Street.
Enquire about this property
Request Appraisal
Welcome to Brighton 3186
Median House Price
$3,255,000
2 Bedrooms
$1,954,250
3 Bedrooms
$2,487,500
4 Bedrooms
$3,662,500
5 Bedrooms+
$4,714,700
Brighton, located just 11 kilometres southeast of Melbourne CBD, is synonymous with luxury and elegance in the real estate market.





























