Sold6 Middlesex Road, Surrey Hills
Auction This Saturday
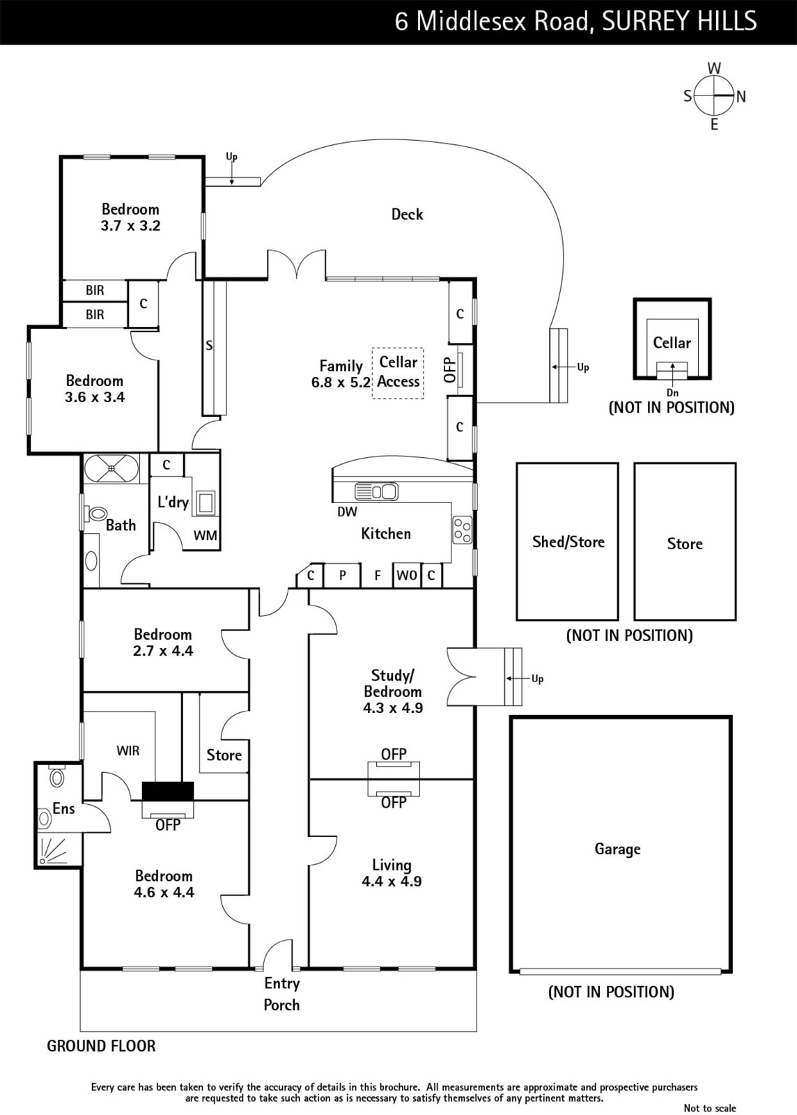
A coveted location in the leafy Surrey Hills English Counties precinct forms the background for this highly desirable Victorian family residence c1880 surrounded by glorious and impeccably maintained gardens - it offers the immediate heritage appeal of an eye-catching Hawthorn Brick façade whilst showcasing crafted period features including an arched Baltic Pine hallway, coloured leadlight glass, high ceilings with roses and a marble OFP. The traditional front rooms lead to a rear extension which blends harmoniously with the character of the home and overlooks a deck and heated pool+spa. A superbly renovated interior features a formal sitting room, study/5th bedroom opening to the northern side garden, four bedrooms, main with WIR and ensuite and two zoned to the rear; plus family bathroom and laundry. A generous open-plan family domain includes a stylishly appointed granite and euro kitchen flowing to the outdoor precinct - perfect for indoor/outdoor family enjoyment and entertaining. Other features include alarm, ducted heating, OFPs, evaporative cooling, storeroom, remote garage and tandem off-street parking.
This beautiful family home is positioned within easy reach of an array of sought-after schools, parklands, Maling Road shops and cafes plus transport options - all offering a sought-after Surrey Hills lifestyle.
Land size: 926sqm
Enquire about this property
Request Appraisal
Welcome to Surrey Hills 3127
- Median House Price- $2,300,250
- 2 Bedrooms- $1,418,334
- 3 Bedrooms- $1,936,666
- 4 Bedrooms- $2,382,500
- 5 Bedrooms+- $3,223,333
Surrey Hills, a prestigious suburb located approximately 11 kilometres east of Melbourne’s CBD, epitomises gracious living with its leafy streets, heritage homes, and a strong sense of community.














