Sold6 Davie Avenue, Cheltenham
Pennydale Potential on 664sqm approx.
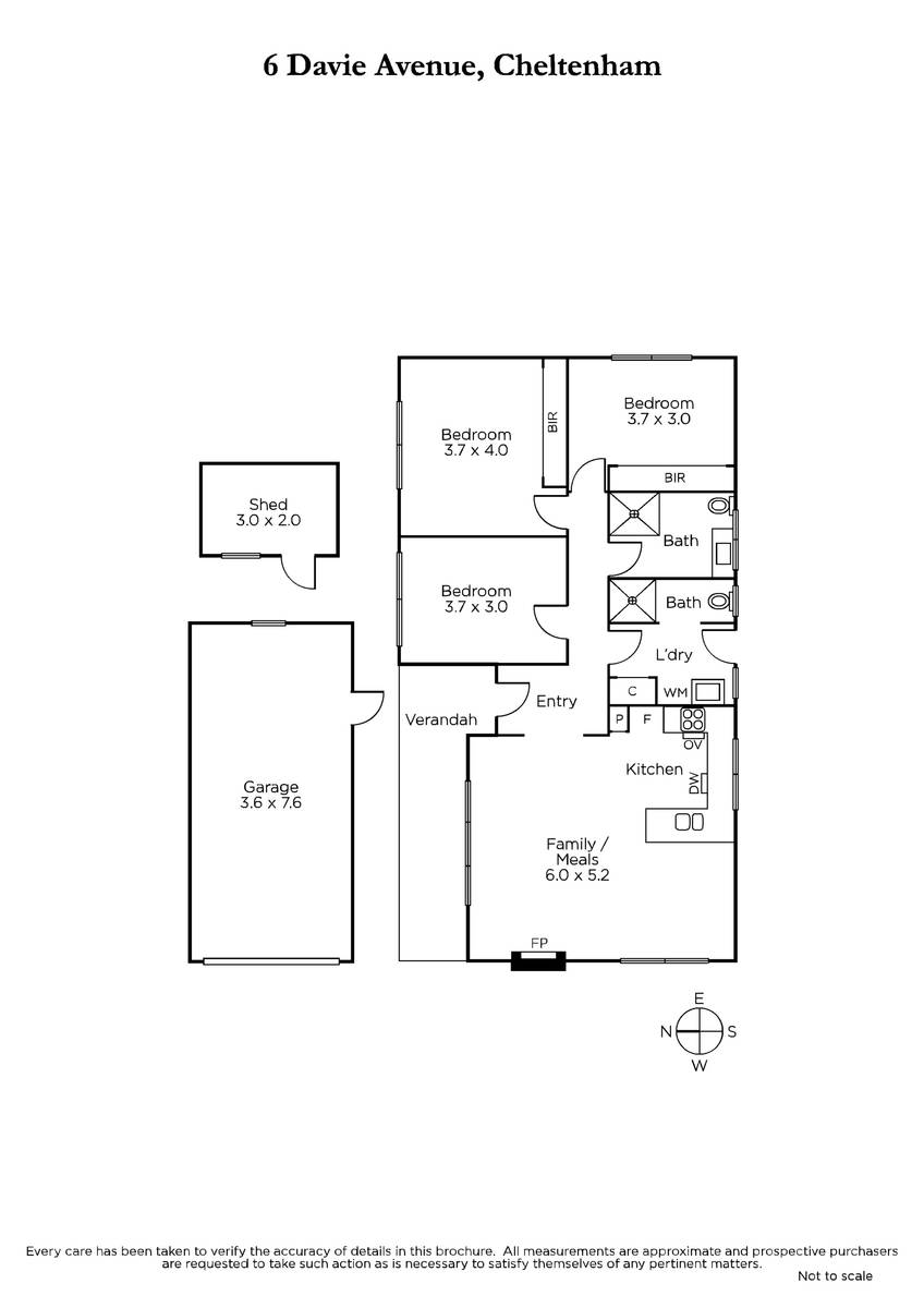
Discover the convenient location and potential of this single-level Mid-Century home, with every family-friendly amenity you need close by. Located in the sought-after Pennydale neighborhood, the timeless design delivers open-plan living, three bedrooms, the option of two bathrooms, and space to extend or rebuild STCA. Updated and full of light, this is ready for your vision to unfold on 664 square metres of land approx. Enhance what's here for easy stair-free living and enjoy the north-west orientation, private spacious garden behind a high front fence, and central address. Features include an updated main bathroom, solid timber floors, ducted heating and a Coonara wood heater, ceiling fans, and generous outdoor storage. Central address is near Southland train station and shops, parks and world-class golf courses are streets away, and schools are close by.
Enquire about this property
Request Appraisal
Welcome to Cheltenham 3192
Median House Price
$1,285,500
2 Bedrooms
$1,100,000
3 Bedrooms
$1,189,250
4 Bedrooms
$1,422,125
5 Bedrooms+
$1,470,625
Cheltenham, about 19 kilometres southeast of Melbourne's CBD, is a vibrant suburb known for its family-friendly atmosphere and diverse real estate offerings.















