Sold6 Bruce Road, Safety Beach
Rare dual-living or Airbnb opportunity with bay views
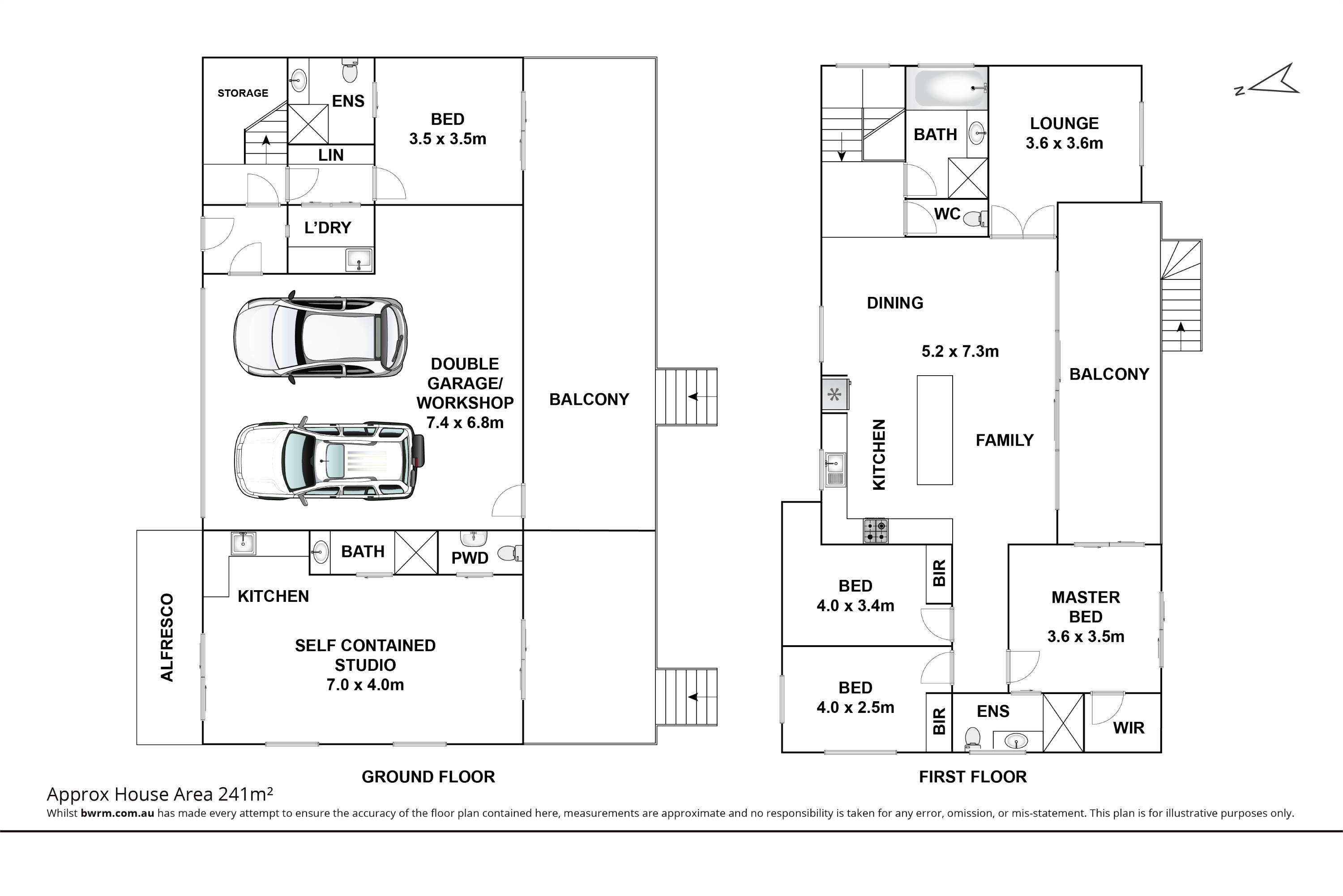
An exceptional, dual-living home with endless possibilities & a brilliant location less than 300m (approx) to the waters edge! Featuring 2 beautifully renovated residences under one roof this stunning 5-bedroom property on 646sqm (approx.) is a unique offering absolutely ideal for multi-generational families, a home-business or buyers seeking a versatile investment or Airbnb opportunity.
Spread over two floors the main 4-bedroom residence offers generous open-plan living on the upper level, light-drenched & designed to impress with sparkling presentation & glorious marina & bay views. Sliding doors deliver a wonderful indoor/outdoor ambience & seamless connection to the balcony where gentle sea breezes, tree top sundowners & alfresco dining are sure to become a way of life. A formal lounge is separate & just the spot for those nights you simply want to curl up with a glass of red.
A deluxe white-on-white kitchen gleaming with stone benchtops & soft-close drawers boasts a full suite of S/S European appliances & dishwasher & breakfast bar.
Adjacent to the main living zone lie 3 newly carpeted & robed bedrooms, all with ceiling fans, the master with luxe ensuite, WIR & private balcony. The secondary bedrooms are served by a fully tiled family bathroom with separate WC.
Zoned for privacy a 4th ensuited bedroom below with own deck is a haven for teens or visitors, or provides a useful 2nd master option for larger Airbnb occupancy.
Next door with its own entrance and courtyard is a fully renovated, self-contained studio with kitchenette & bathroom currently yielding $350/night in the high season on Airbnb.
Finished to perfection this impeccable property boasts new plumbing, new Colourbond roof, new wiring, all double-glazed windows, quality tiles, carpet & floating floors, 5 x split-system air conditioners, European laundry with stone benchtops, Bosch security system with CCTV, 6.6KW solar system, garden irrigation system, 2 x 2000L rainwater tanks, automatic gate with security code, double garage with auto door & off street parking for up to 10 vehicles.
Located a short stroll to Martha Cove Marina, the Safety Beach Sailing Club, boat ramp, Provincia Deli, local wineries & golf courses, this quality beachside home is all about lifestyle with options galore, inspection sure to impress!
Enquire about this property
Request Appraisal
Welcome to Safety Beach 3936
Median House Price
$1,163,375
3 Bedrooms
$1,001,250
4 Bedrooms
$1,271,500
5 Bedrooms+
$1,665,000
Located approximately 75 kilometres south of Melbourne on the Mornington Peninsula, Safety Beach is a coastal suburb that has become a magnet for both visitors and locals, drawn by its relaxed coastal lifestyle.





























