Sold6/6A St Leonards Avenue, St Kilda
Contemporary Excellence In Prime Position
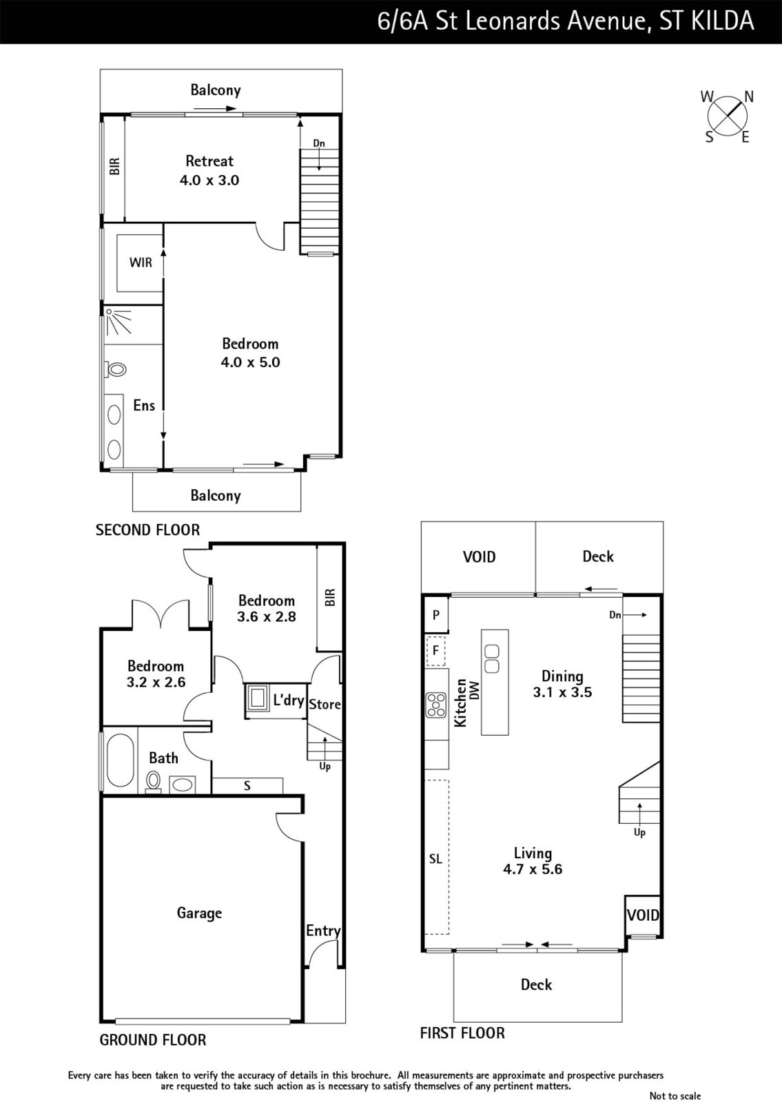
Tucked away in a sought after pocket just a short walk from the buzz of Acland and Fitzroy Streets, absolute peace and privacy combine with beautifully generous contemporary proportions in this architect designed three bedroom town residence. Positioned at the rear in an exclusive group of six only, a superbly stylish tri level floorplan boasts brilliant northern light throughout as well as a serene parents retreat and multiple alfresco domains on a low maintenance template perfect for maximizing the area's iconic beachside lifestyle. Two ground floor bedrooms, each with courtyard access, are arranged in an ideal teen configuration with sitting zone and fully tiled bathroom. On the first floor, impressive open plan living, dining and entertaining spaces incorporate a smart granite chefs kitchen with quality appliances, sliding at either end to deep alfresco terraces, one with leafy views, the other basking in northern sun. At the top, a fabulous parents retreat features a bright sitting/study domain with extensive storage and sun terrace before a serene main bedroom offers fitted walk in robe, marble topped ensuite and breakfast balcony. With intercom entry, alarm, polished timber floors, reverse cycle heating/cooling, new carpeting, and remote double garage with internal access via Robe Street.
Enquire about this property
Request Appraisal
Welcome to St Kilda 3182
- Median House Price- $1,636,667
- 2 Bedrooms- $1,200,000
- 3 Bedrooms- $1,556,667
- 4 Bedrooms- $2,253,333
St Kilda, located 6 kilometres southeast of Melbourne’s CBD, is a vibrant seaside suburb known for its eclectic charm and rich cultural heritage.












