Sold58 Park Road, Middle Park
Breathtaking Style, Bayside Lifestyle
The spectacular transformation of this c1930's Deco duplex by Multiplicity Architects has resulted in a remarkable contemporary residence that is as breathtakingly beautiful as it effortlessly functional for modern family living. Only 2 blocks from the beach and walking distance to Armstrong St Village, the light rail and Albert Park Lake, it is a sensational statement in style.
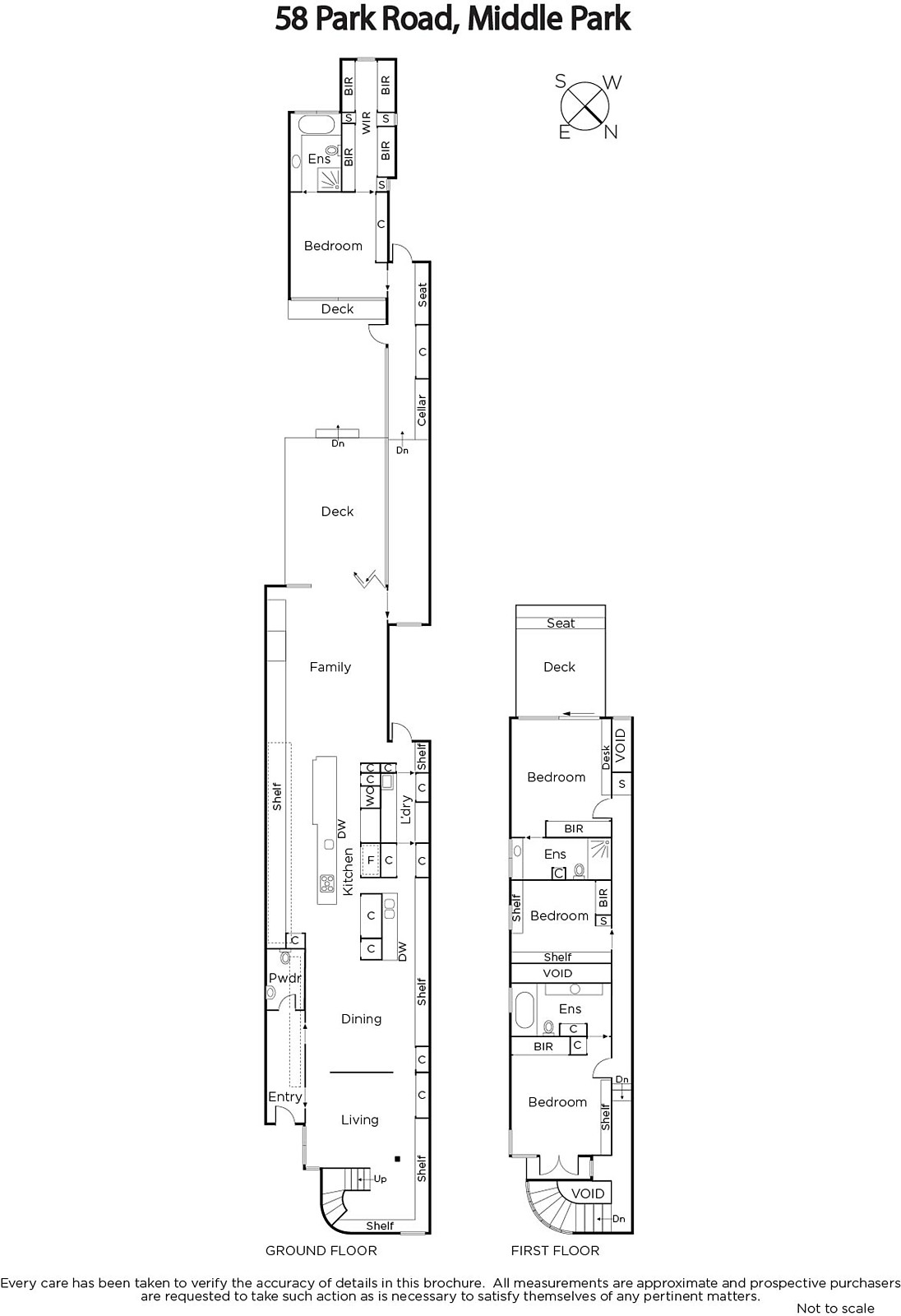
Behind the distinctive original curved façade, limed oak floors are paired with industrial steel, soaring voids and vast expanses of glass to create a warm and inviting yet ultra stylish interior. Cleverly separated by recessed sliders, the sitting room is adjacent to an evocative dining area and a stunning premium kitchen with Butler's pantry, Gaggenau ovens, timber breakfast bar and built in study nook. The light-filled living area with open fireplace and polished concrete floors opens to a sunny private courtyard garden with large entertaining deck. A glass gallery with a series of wine fridges connects the courtyard to a large private northwest garden. The beautiful main bedroom with lavish marble en-suite and built in robes is serenely situated overlooking the courtyard while a fabulous children's zone upstairs comprises a gorgeous fitted bedroom with marble en-suite, third bedroom with BIR and roof top terrace, 3rd marble bathroom and a retreat/4th bedroom with pull down bed.
An unforgettable modern masterpiece, it also includes hydronic heating, RC/air-conditioning, powder-room, laundry, outdoor shower, water tanks, work-shop, remote gates to Patterson St and off street parking for two vehicles.















