Sold57 Riversdale Road, Hawthorn
Outstanding Development Opportunity
This generous, elevated allotment of 618sqm approx. fronting Riversdale Road with a preferred northern rear aspect offers an exceptional opportunity which Developers will want to grab with open arms, by demolishing the existing home for the construction of an apartment complex (STCA) in a streetscape which is now dominated by newly constructed apartment buildings. Underpinned by a great location with close proximity to the coveted Scotch Hill precinct, Yarra Parklands, including Fairview Park. Also minutes from popular shopping and dining areas including West Hawthorn, Swan Street, Glenferrie or Bridge Roads. Plus close proximity to a myriad of sought-after schools (zoned to Melbourne Girls College & Auburn High School) public transport options and only moments to City Link - all providing idyllic lifestyle choices and easy access to the CBD or desirable recreation amenities.
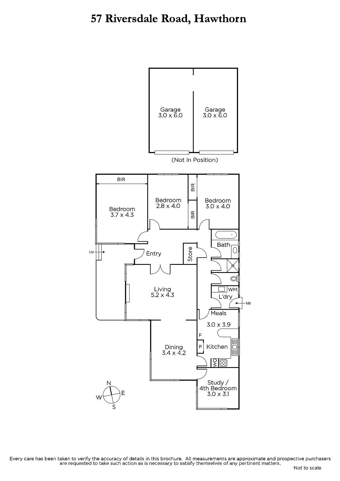
The property is currently occupied by a brick family home c1958 in original condition; which could be renovated and updated if desired (STCA) or leased out while plans and permits are obtained for the future redevelopment of the site. The accommodation comprises four bedrooms or three plus a study, a sitting and dining room, period-style kitchen/meals, laundry and bathroom with separate shower and WC. Other features of the existing home include gas heating and double lock-up garaging with off-street parking.
Land size: 618sqm approx.
Enquire about this property
Request Appraisal
Welcome to Hawthorn 3122
Median House Price
$2,981,250
2 Bedrooms
$1,677,500
3 Bedrooms
$2,147,500
4 Bedrooms
$3,550,000
5 Bedrooms+
$6,271,425
Hawthorn, approximately 6 kilometres east of Melbourne’s CBD, is an affluent and vibrant suburb known for its rich history, beautiful parks, and prestigious educational institutions.














