Sold56 High Street, Doncaster
Sensational Family Focus
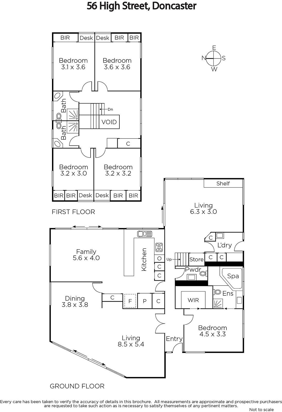
General Residential Zoning-Schedule 1. Brilliantly designed to maximize space, light and privacy, the timeless floor-plan of this fabulous 1985 brick residence is still impeccably relevant and functional for modern family living. Enviably situated close to village shops, Shopping Town, park and ride, freeway access and great schools, it offers immediate family appeal while also offering scope to update as required.
Soaring vaulted ceilings accentuate the sense of space and light in the generous sitting and formal dining room opening to a private northwest forecourt. The light-filled family living and dining room with a well appointed kitchen and a separate rumpus/recreation room open to a northeast garden with solar heated pool. The main bedroom with spa-ensuite and walk in robe enjoys downstairs serenity while a clever children's zone upstairs comprises four fitted bedrooms and two bright bathrooms.
Appointed with RC/air-conditioning, evaporative cooling, alarm, video intercom, powder-room, laundry, auto gates and double carport.
Enquire about this property
Request Appraisal
Welcome to Doncaster 3108
Median House Price
$1,543,000
2 Bedrooms
$998,500
3 Bedrooms
$1,350,000
4 Bedrooms
$1,599,750
5 Bedrooms+
$1,950,000
Doncaster, situated about 15 kilometres northeast of Melbourne’s CBD, is a suburb known for urban convenience and green suburban living.











