Sold54 Gardiner Parade, Glen Iris
Fabulous Family Focus Opposite Nettleton Park
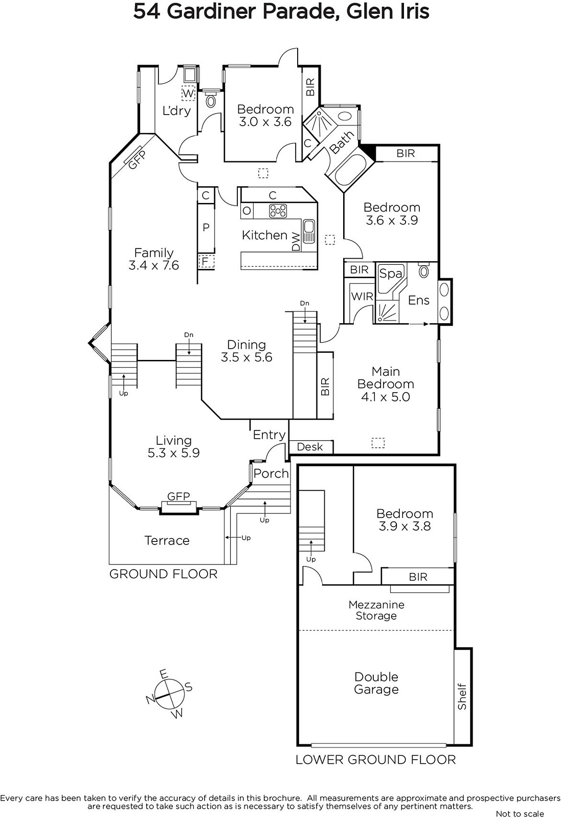
Architecturally designed in the 1980's, the generous proportions and brilliant floor-plan of this sun-drenched residence are just as relevant and functional for modern family lifestyles as when it was built. Idyllically situated opposite Nettleton Park and walking distance to schools, Glen Iris and Gardiner train stations, shops and the freeway, it is perfect to enjoy now while also offering scope to further update or alternatively to rebuild as a new home (STCA).
Soaring vaulted ceilings and an abundance of glass accentuate the sense of space and light in the inviting sitting room warmed by a gas fire and the spacious living room. Timber floors flow through the dining area and superbly appointed modern kitchen. The main bedroom includes a bright en-suite, walk in robe and study nook while three additional double bedrooms with built in robes share a stylish bathroom. A leafy backdrop ensures the privacy of a paved northeast facing garden and outdoor entertaining area.
Also featuring plantation shutters, mezzanine storage, spacious laundry and internally accessed double garage. Land size: 622sqm approx.
Enquire about this property
Request Appraisal
Welcome to Glen Iris 3146
Median House Price
$2,593,750
2 Bedrooms
$1,528,750
3 Bedrooms
$2,220,250
4 Bedrooms
$2,708,750
5 Bedrooms+
$3,823,500
Glen Iris, situated approximately 10 kilometres southeast of Melbourne's CBD, is a well-established and affluent suburb known for its leafy streets, spacious parks, and prestigious schools.












