Sold51 Middlesex Road, Surrey Hills
Timeless Elegance, Family Luxury
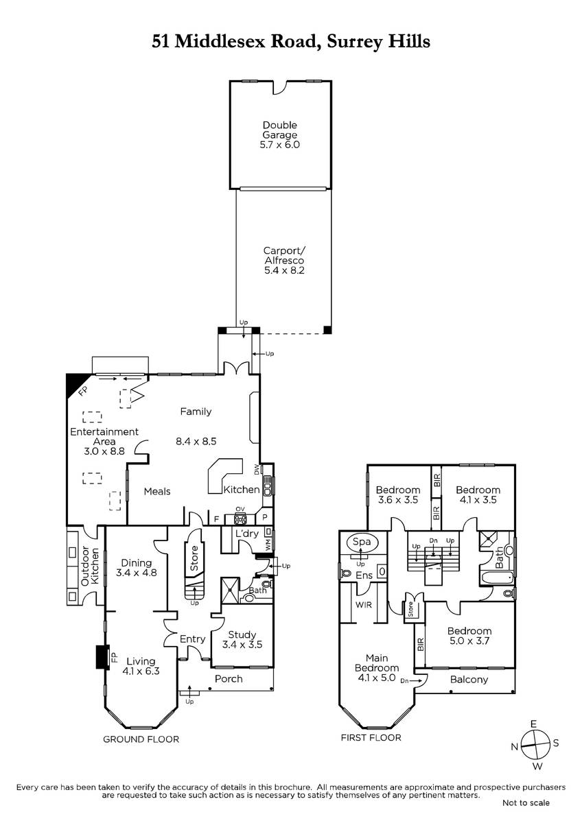
Reflecting the grandeur and elegance of Victorian architecture, this classically inspired solid brick balconied residence's substantial dimensions and beautiful landscaped garden and pool surrounds respond effortlessly to every modern family requirement in the sought-after English Counties Estate.
Exquisite leadlight windows and ornate ceilings are displayed in the generous entrance hall featuring timber floors, magnificent sitting room with a marble gas fire and bay window, the refined formal dining room and spacious home office. A splendid central staircase leads up to the opulent main bedroom with bay window, lavish en suite, walk in robe and balcony, three additional bedrooms with built in robes and a stylish bathroom. Timber floors flow through the expansive open plan living and dining room with a gourmet kitchen boasting stone benches and Miele/Ilve appliances. Bi-fold doors connect the living spaces with a fabulous undercover al fresco dining deck with gas fire, TV, ceiling fan and a full BBQ kitchen with 2 bar fridges. The glorious private landscaped northeast garden features a picturesque heated pool, in-ground trampoline, double garage and a large carport or undercover entertaining terrace.
Desirably situated in a leafy street close to Chatham station, Maling Rd, Riversdale Rd trams and excellent schools, it includes an alarm, video intercom, ducted vacuum, ducted heating/cooling, third bathroom, laundry and auto gates. Land size: 788sqm approx.
























