Sold51 Essex Road, Surrey Hills
"Aston Lea" - Pure Joy
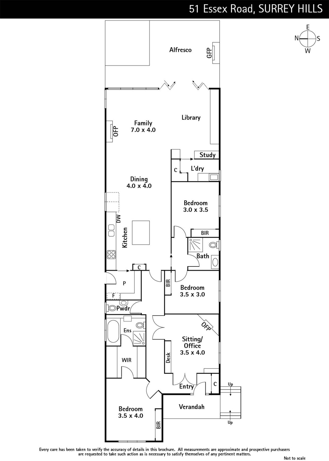
"Pure Joy" headed one of the recent Home Magazine articles featuring this brilliantly redesigned and extended Californian Bungalow c1924 highlighted by a superb and surprisingly spacious interior created by its Interior Designer owner. Meticulous attention to detail and colour selection infuse this property with stunning living and entertaining spaces, enhanced by a prestigious location in the coveted Surrey Hills English Counties precinct. With an instantly appealing ambience the accommodation includes a dark stained timber hallway opening through double glass doors to a sitting room with OFP, main bedroom with BIRs, WIR and fully-tiled ensuite, powder room, laundry and a pristine family bathroom dividing two bedrooms zoned to the rear. All flowing to an expansive living & dining area incorporating a concealed work station and state-of-the-art kitchen with Butler's pantry, CaesarStone bench-tops and prestige Euro appliances opening to an outdoor room with gas rockFP - perfect year round indoor/outdoor entertaining and delivering serene vistas of the rear garden lined with box hedges, camellias, Ornamental Pears and pretty weeping crabapples. Other features include ducted heating & cooling, OFPs, surround sound, ample inside & garden storage and front off-street parking.
This captivating home featured in The Herald Sun Home Lift out Supplement February 2012 and August 2014, Home Beautiful July 2010 and September 2014 and Modern Home October 2014 is conveniently positioned within easy reach of schools, parklands, Maling Road and transport offering a sought-after Surrey Hills lifestyle.
Enquire about this property
Request Appraisal
Welcome to Surrey Hills 3127
Median House Price
$2,300,250
2 Bedrooms
$1,418,334
3 Bedrooms
$1,936,666
4 Bedrooms
$2,382,500
5 Bedrooms+
$3,223,333
Surrey Hills, a prestigious suburb located approximately 11 kilometres east of Melbourne’s CBD, epitomises gracious living with its leafy streets, heritage homes, and a strong sense of community.













