Sold506/108 Bay Street, Port Melbourne
"Bianca" - Curvaceous Lines, Luxurious Style
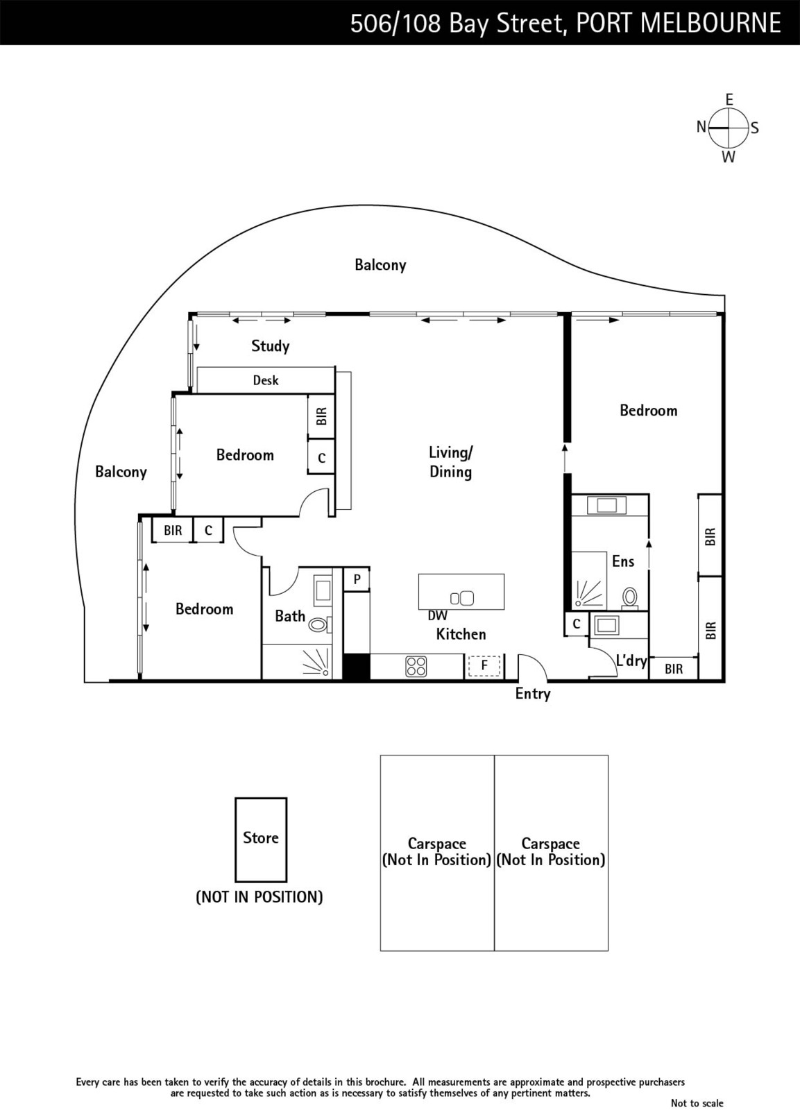
Completely surrounded by a sweeping curved balcony offering spectacular uninterrupted city and Bolte Bridge views, this luxuriously proportioned and appointed boutique apartment delivers an unbeatable bayside lifestyle above Thomas Dux and a myriad of restaurants just metres from the beach.
Streaming with northern light, the expansive open plan living and dining room with a state of the art Miele kitchen boasting marble benches features timber floors and custom built cabinetry. Full height glass sliders reveal a wide balcony curving around the entire apartment. The stunning main bedroom with lavish walk in robes and designer en-suite, two additional double bedrooms with built in robes, a fitted study and a stylish bathroom all open to the north-facing balcony.
This sensational apartment also includes heating and cooling, video intercom, lift access, laundry, basement car parking for two cars, storage and access to "Bianca's" heated outdoor pool and BBQ terrace.
Enquire about this property
Request Appraisal
Welcome to Port Melbourne 3207
Median House Price
$1,595,500
2 Bedrooms
$1,260,000
3 Bedrooms
$1,661,250
4 Bedrooms
$2,420,000
5 Bedrooms+
$2,524,000
Port Melbourne, located just 5 kilometres southwest of Melbourne's CBD along the shores of Port Phillip Bay, is a suburb that seamlessly merges its rich maritime history with contemporary urban living. This area is celebrated for its beaches, including Port Melbourne Beach and its historic piers, offering both leisure and a glimpse into the suburb and port origins.










