Sold50 Linacre Road, Hampton
Lifestyle, Location, Low Maintenance
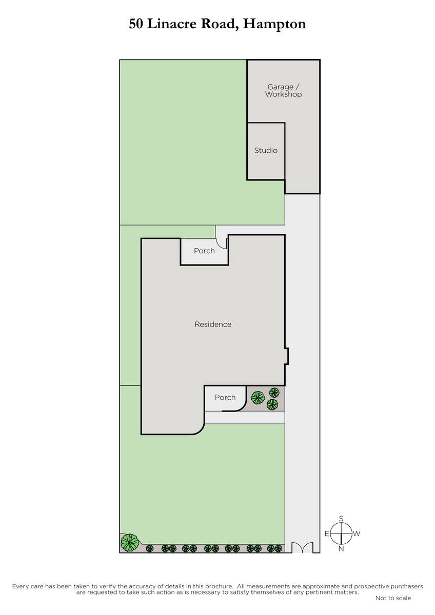
Enjoying a sensational location moments from the beach, this enticing Art Deco residence delivers immeasurable lifestyle rewards. The delights of Hampton Street are nearby as well as parklands, Hampton Station and a choice of excellent schools including Sandringham Primary School and a number of exclusive private schools. Beyond a classic rendered and feature brick façade, the freshly painted and recently updated interiors boast generous proportions enhanced by original decorative ceilings and polished timber floors. A bright and welcoming foyer leads to spacious living and dining rooms, each with open fireplace, and a separately zoned contemporary kitchen showcasing stone benches and quality stainless steel appliances. Three sizeable bedrooms, a sleek bathroom, light filled study and dedicated laundry complete this fine offering. Also features the convenience of a two car garage and outdoor storage sheds, with a substantial yard at the rear offering exciting scope to extend in the future, if desired (STCA). Vicinity
Enquire about this property
Request Appraisal
Welcome to Hampton 3188
Median House Price
$2,262,500
2 Bedrooms
$1,506,250
3 Bedrooms
$1,907,500
4 Bedrooms
$2,437,500
5 Bedrooms+
$3,206,875
Hampton, about 14 kilometres southeast of Melbourne’s CBD, is a coastal suburb known for its relaxed beachside lifestyle and family-friendly atmosphere.














