Sold5 Stawell Street, Kew
Significant Studley Park Opportunity on 1080sqm (approx.) - No Heritage Overlay
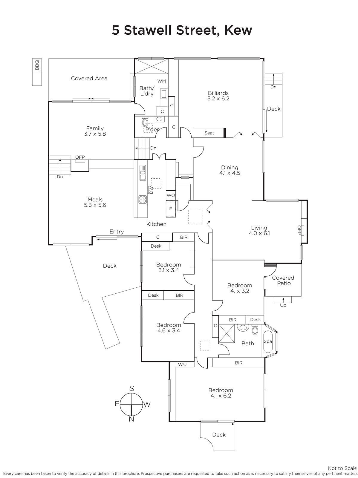
Impressively situated within a glorious 1,080sqm approx. Studley Park garden allotment, this substantial split-level family residence offers a myriad of exciting possibilities. Perfect to live in now while considering options to renovate and extend or to rebuild as a new luxury home. Alternatively, its broad 20m approx. frontage and close proximity to Kew Junction, Yarra parkland, trams and a range of schools makes it the ideal site for a boutique development (STCA).
Soaring vaulted timber lined ceilings accentuate the sense of space in the generous family living and dining room served by a well appointed Neff kitchen. An inviting retreat with open fireplace opens to a covered BBQ terrace and the deep private leafy garden with pool. A sensational recreation/rumpus room and elegant formal dining and sitting room (open fire) all open to the picturesque gardens. A spacious accommodation wing comprises four bedrooms with built in robes and a bathroom.
A rare Studley Park opportunity, it also includes an alarm, bar room, powder-room, laundry with 2nd shower and double carport.
Enquire about this property
Request Appraisal
Welcome to Kew 3101
Median House Price
$2,639,333
2 Bedrooms
$1,671,667
3 Bedrooms
$2,169,667
4 Bedrooms
$2,893,333
5 Bedrooms+
$4,418,333
Kew, positioned just 5 kilometres east of Melbourne's CBD, is renowned for its sophistication and elegance.



















