Sold5 Power Street, Hawthorn
Classic Elegance Meets Contemporary Design
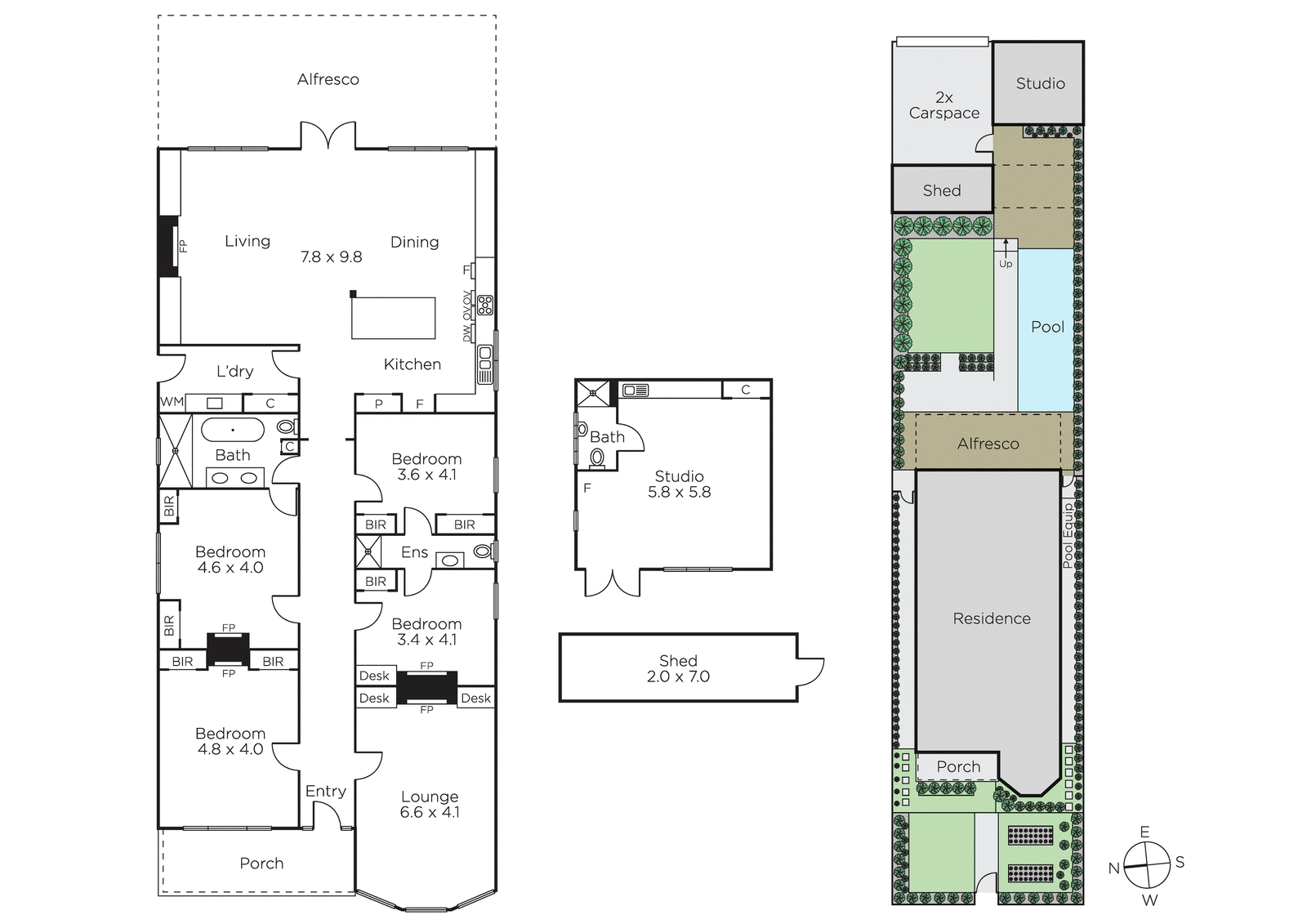
The timeless grandeur and elegance displayed by this glorious double fronted solid brick Victorian residence has been brilliantly enhanced by a stunning renovation that has added the latest designer style, lavish finishes and exceptional family functionality.
Serenely set behind a high walled garden, the imposing double arched hallway beneath tall ceilings introduces a gracious sitting room with marble fireplace and a bay window overlooking the garden. The beautiful main bedroom with marble fireplace, opulent en suite/bathroom and built in robes sets a benchmark in style that is matched by two additional bedrooms with a shared designer en suite and a generous 4th bedroom with fireplace. The ceiling height is maintained through the expansive open plan living and dining room featuring Tasmanian Oak floors, a marble wood fire heater and sublime gourmet kitchen appointed with Calacatta Gold Extra marble benches, 2 Bertazzoni ovens and a Vintec wine fridge. Double doors extend the living out to a very broad undercover deck and the deep private northeast facing leafy garden with a picturesque solar/gas heated pool and freestanding studio apartment with kitchenette and bathroom. There is also secure off-street parking for 2 cars accessed via the rear right of way.
Enviably situated close to elite schools, Kew Junction, Glenferrie Rd shops and restaurants and tramlines, it includes ducted heating, designer lights, laundry, irrigation, solar panels and garden shed/storeroom.
Enquire about this property
Request Appraisal
Welcome to Hawthorn 3122
Median House Price
$2,981,250
2 Bedrooms
$1,677,500
3 Bedrooms
$2,147,500
4 Bedrooms
$3,550,000
5 Bedrooms+
$6,271,425
Hawthorn, approximately 6 kilometres east of Melbourne’s CBD, is an affluent and vibrant suburb known for its rich history, beautiful parks, and prestigious educational institutions.
























