Sold5 Orange Grove, Camberwell
Timeless Contemporary Elegance
Enjoying a tree-lined location only moments to local institution Monaco's, Camberwell Junction's shops, restaurants and cinemas, trams and schools, this generously proportioned and stylishly presented contemporary residence instantly impresses with its beautiful garden surrounds and low maintenance practicality.
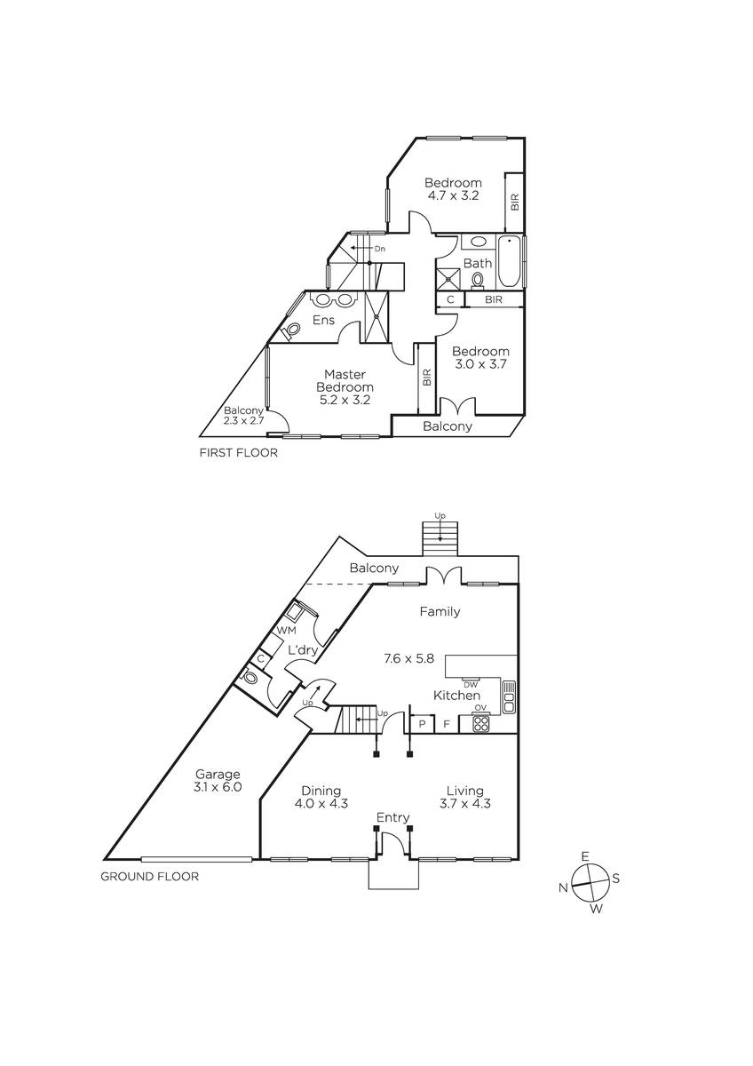
Nestled behind a high walled northwest garden oasis, the central entrance hall flows through to an inviting sitting room and light-filled formal dining room. Featuring hardwood timber floors and bathed in natural light, the open plan living and dining room with a gourmet stone kitchen opens through French doors to a decked verandah and the private leafy northeast garden. Upstairs accommodation comprises a spacious main bedroom with built in robe, en suite and north-facing balcony, two additional bedrooms with built in robes, bright bathroom and a west-facing balcony.
Ideal for lock up and leave living, it includes ducted heating, zoned air-conditioning, ducted vacuum, laundry, 3rd toilet, storage and internally accessed garage. Land size: 240sqm approx.
Enquire about this property
Request Appraisal
Welcome to Camberwell 3124
Median House Price
$2,590,000
2 Bedrooms
$1,512,000
3 Bedrooms
$2,270,000
4 Bedrooms
$2,771,000
5 Bedrooms+
$3,500,000
Camberwell, located just 9 kilometres east of Melbourne's CBD, stands out as a prominent suburb in the real estate market, renowned for its scenic, tree-lined streets and heritage-rich architecture.















