Sold5 Nyora Street, Malvern East
Land between the Parks - No Heritage!!
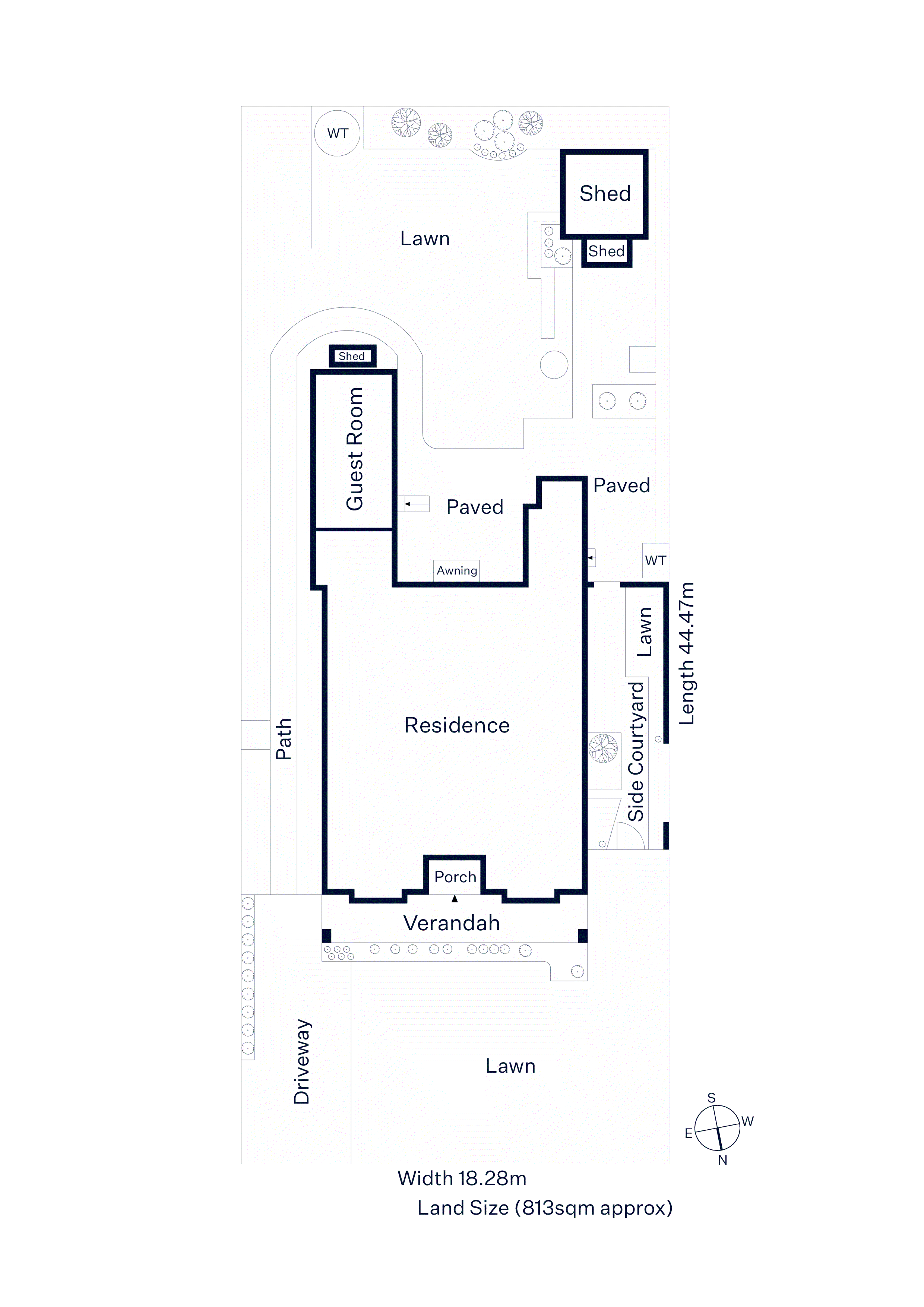
Exceptional Value. With its 18.3m frontage and 813 sqm (approx.) allotment – possibly the best land opportunity near Central Park that we’ve seen in a very long time. Offered for the first time since it was built in 1916, this house with it's deep north-facing garden backing directly onto Knox Street, represents a significant opportunity to renovate, rebuild or develop in a coveted location between Hedgeley Dene and Central Park (STCA).
Behind an exceptionally broad frontage and imposing verandah, the wide central hall featuring leadlight windows and high ceilings flows through to an expansive living room with fireplace, a retreat or dining room and a large well-equipped kitchen. The four double bedrooms are accompanied by a modern bathroom and 2nd toilet. Never to be overlooked from the rear, the deep leafy garden with studio/home office and workshop offers plenty of room to extend and to add a pool. Includes RC/air-conditioner, laundry, garden shed, water tank and off street parking.
With no heritage overlay and offering close proximity to Wattletree Rd trams, Darling station and a range of elite schools, this is a once in a lifetime opportunity in such a prized pocket. Land size: 813sqm approx.
Enquire about this property
Request Appraisal
Welcome to Malvern East 3145
Median House Price
$2,122,500
2 Bedrooms
$1,489,000
3 Bedrooms
$1,842,000
4 Bedrooms
$2,482,500
5 Bedrooms+
$2,977,500
Situated 12 kilometres southeast of Melbourne’s bustling CBD, Malvern East is a suburb renowned for its blend of family-friendly charm and cosmopolitan living.




















