Sold5 Cambridge Street, Brighton East
Renovated And Ready To Love
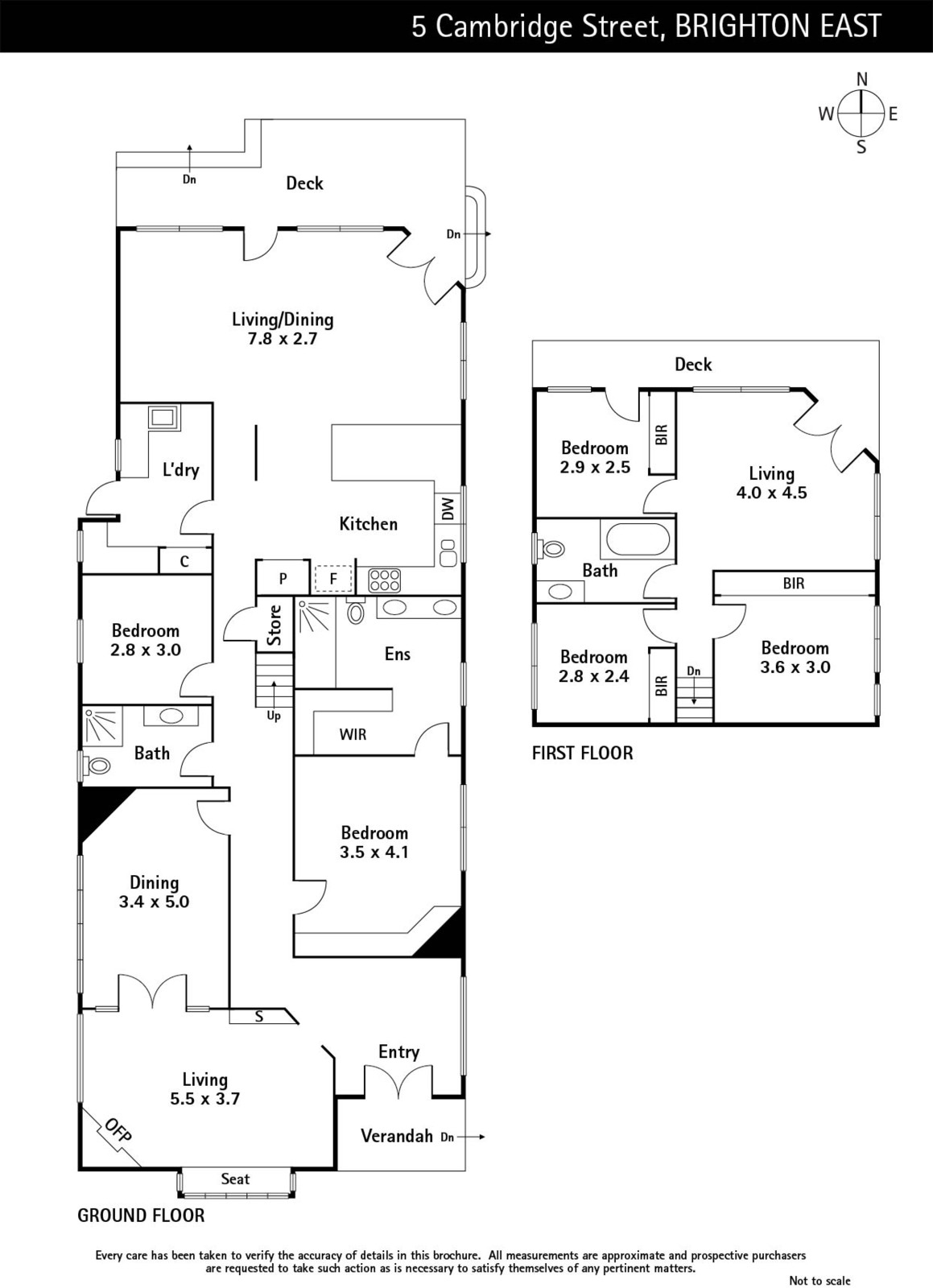
Contemporary spaciousness and Californian character are beautifully balanced in this idyllic home. This is where families can live around the corner from Landcox Park, near Bay Street, and in the Gardenvale Primary School zone. Recently renovated to a high standard, the original leadlight, picture rails and elegance are matched with today's finishes, metres of marble in the new kitchen, and luxury bathrooms. Every feature on your wish list is here, including five bedrooms with a ground-floor parents' suite, 4 living rooms, a study, a pool and plenty of play space. There's nothing to do but move in and love this impeccably maintained home. State-of-the-art kitchen features integrated refrigeration, Blum cabinetry, and a six-burner Smeg range. Year-round comfort is easy with five air conditioners, and new carpets and polished floorboards are part of the stylish revival. A wonderful home for easy living, in a location close to everything families need.
Enquire about this property
Request Appraisal
Welcome to Brighton East 3187
Median House Price
$2,104,500
2 Bedrooms
$1,530,000
3 Bedrooms
$1,805,000
4 Bedrooms
$2,332,750
5 Bedrooms+
$2,753,500
Known to be quieter than its neighbours, Brighton East is a highly sought-after location, blending community vibes, heritage aesthetics and a suburban charm that keeps locals loyal to its appealing beachside lifestyle.














