Sold5/83-89 Brighton Road, Elwood
Impressive Warehouse Conversion
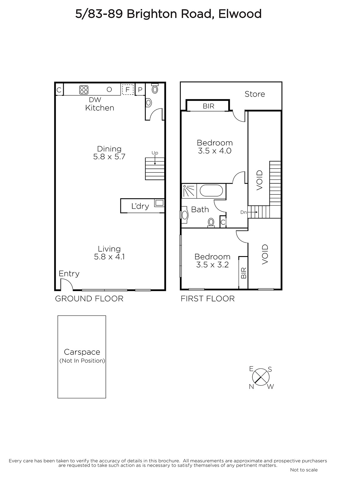
An impressive industrial conversion arranged across two levels, this Elwood town residence located in Melbourne's iconic 'Old Hat Factory' is the epitome of urban chic.
Stylish living and dining areas with polished floorboards form the heart of this contemporary domain. The perfect space for entertaining, a Pullman kitchen featuring a stainless-steel workbench, extensive storage and blackboard wall flows seamlessly into generous dining and lounge areas bathed in natural light. The first floor boasts two expansive bedrooms complete with exposed brick feature walls and sizeable built-in wardrobes as well as a well-appointed, modern bathroom. Additional features include storage space/nook accessible through main bedroom, European laundry, powder room, secure off-street parking, intercom and Ademco security system.
This fine abode is exclusively located moments away from St Kilda Botanical Gardens, Elwood Beach, Acland and Chapel Streets, with Melbourne's CBD only a short distance away.
Enquire about this property
Request Appraisal
Welcome to Elwood 3184
Median House Price
$2,256,250
2 Bedrooms
$1,620,000
3 Bedrooms
$2,070,000
4 Bedrooms
$2,937,500
5 Bedrooms+
$3,300,000
Elwood, located about 8 kilometres southeast of Melbourne's CBD, is a laid-back and stylish beachside suburb.












