Sold48 Winton Road, Ashburton
Family Excellence at Exceptional Value
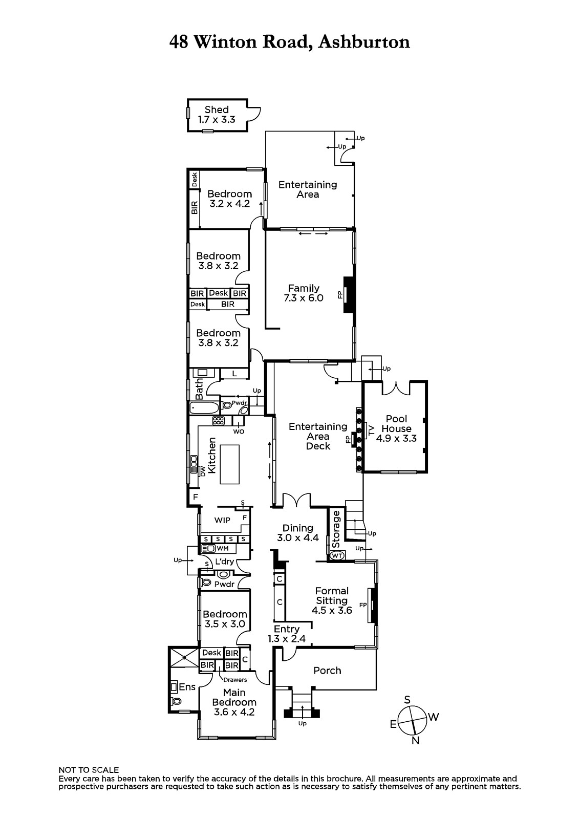
From the generous proportions to the brilliant zoning and sensational garden and pool surrounds, every aspect of this renovated c1950's brick residence highlights its immeasurable family appeal. Rarely does a home at this level offer so much.
A designer blend of classic and contemporary styling is displayed through the central hallway, inviting sitting room with a wood fire heater and separate dining room.
The exceptionally spacious gourmet kitchen, superbly appointed with stone benches, Bosch appliances and butler's pantry, opens to a sunny private north-facing deck.
An expansive living room or family retreat with gas fireplace extends out to a second large deck, solar heated pool and fabulous pool house or rumpus room.
An abundance of family accommodation comprises the main bedroom with built in robe and en-suite and a second bedroom/study in one area while in a children's wing there are three additional bedrooms with built in robes and a bathroom.
In a fabulous family focused pocket, it is close to Gardiner's Creek, East Malvern station, the golf course, Ashburton Village, freeway access and a range of schools.
Includes 3rd shower, powder-room, hydronic heating, laundry, ceiling storage, solar panels, shed and ample off street parking. Land size: 700sqm (approx.)
Enquire about this property
Request Appraisal
Welcome to Ashburton 3147
Median House Price
$1,973,750
3 Bedrooms
$1,676,250
4 Bedrooms
$2,110,250
5 Bedrooms+
$2,260,000
Ashburton, situated about 12 kilometres southeast of Melbourne's CBD, is a suburb that seamlessly merges its historical origins with modern living and a dynamic real estate market.





















