Sold48 Malin Street, Kew
Step Up to a Fabulous Lifestyle
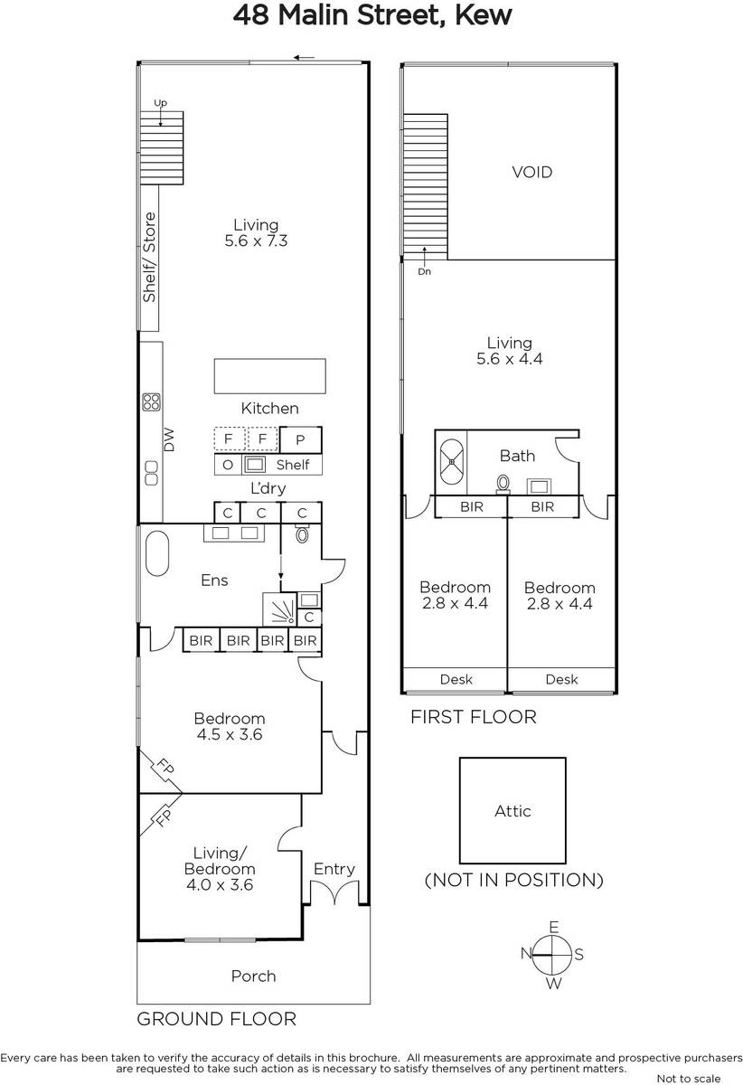
A three c architects designed renovation and a spectacular split-level rear extension have transformed the interior of this elevated tuck-point brick Edwardian semi-detached home, delivering an instantly appealing contemporary living environment enhanced by its highly desirable location on the fringe of the Sackville Ward. Within walking distance of an array of Melbourne's finest schools and close to Kew Junction, Glenferrie Road's fashionable shops, restaurants, cafes, the new Recreation Centre and Lido cinema plus transport options to the CBD and Kellet Reserve - all providing sought-after family lifestyle amenities.
As one-of-a-pair it benefits from a preferred northern orientation and abundance of natural light, this stylish home features luxurious fixtures and fittings of the highest quality. Wide European Oak floorboards flow past two downstairs bedrooms, or one plus a sitting room or study, the main bedroom has a sleek ensuite and powder room. All leading to a stunning kitchen with adjoining laundry featuring a Liebherr integrated fridge/freezer, prestige Miele appliances, stainless steel bench and Calacatta marble island bench plus a sensational open-plan living and dining room, highlighted by floor-to second level glass and stairs leading to a family retreat/play area, bathroom and two further bedrooms with tree-top city views. A paved courtyard and landscaped garden maintained by Lisa Ellis. Terraced gardens framed by a pair of Magnolia trees provides an inviting area for indoor/outdoor entertaining and relaxation.
Other attributes include Apaiser stone bathtub & basin, double glazing, hydronic heating, ducted R/C air conditioning, roof storage, rain water tanks, cubbyhouse and off-street parking.
Enquire about this property
Request Appraisal
Welcome to Kew 3101
Median House Price
$2,639,333
2 Bedrooms
$1,671,667
3 Bedrooms
$2,169,667
4 Bedrooms
$2,893,333
5 Bedrooms+
$4,418,333
Kew, positioned just 5 kilometres east of Melbourne's CBD, is renowned for its sophistication and elegance.















