Sold47 Howe Crescent, South Melbourne
'HAZELWOOD TERRACE' c1864-65
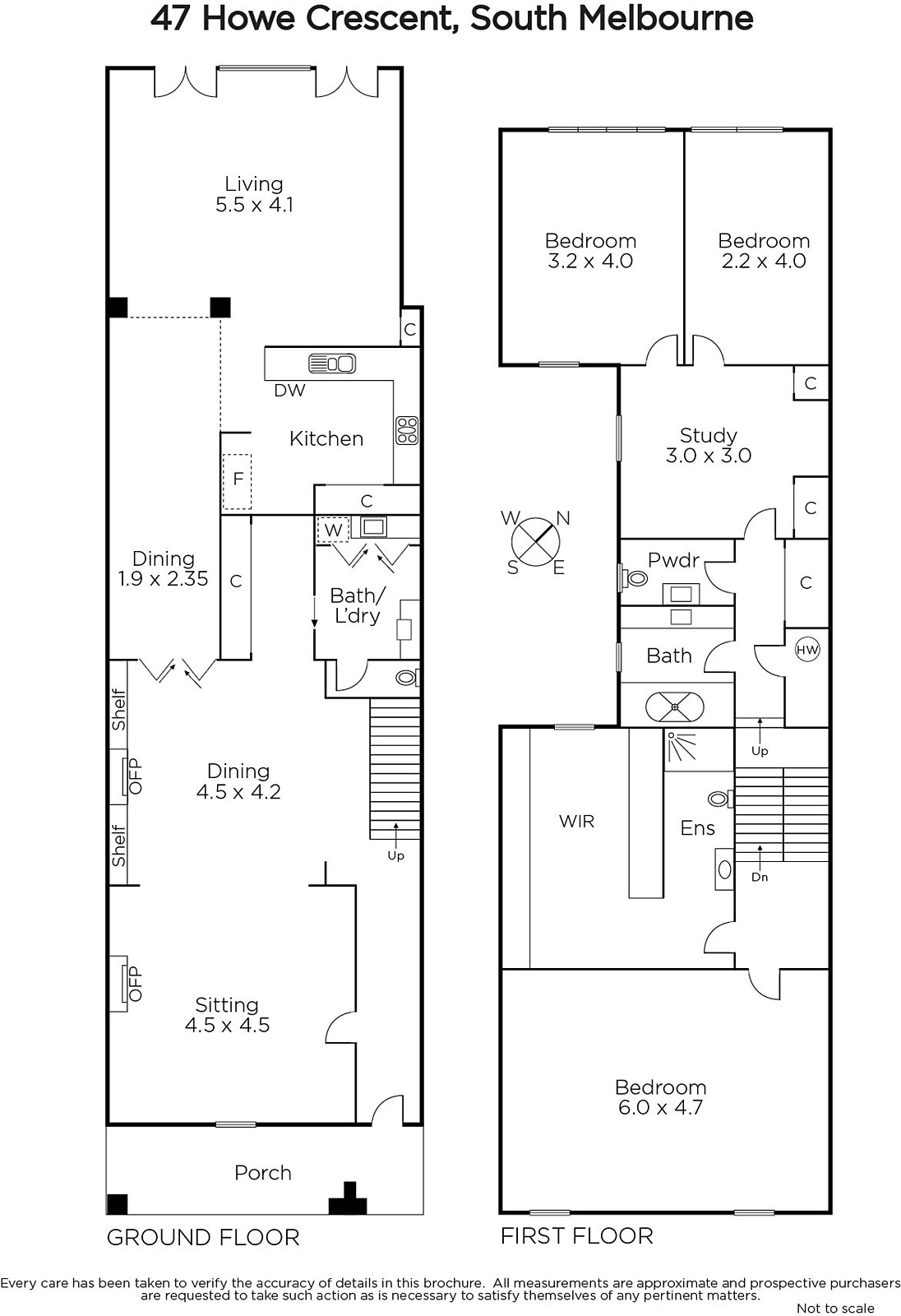
A National Trust of Australia icon, 'HAZELWOOD TERRACE' is a magnificent example of the Italianate Victorian era, built in 1864-1865 to the design of prominent architect Charles Webb. Its significant heritage integrity is introduced by grand exterior aesthetics, a striking façade and interiors that showcase the hallmarks of the era. Refined interiors include elegant formal sitting and dining rooms with dual marble open fireplaces and soaring ceilings, preceding open -plan family living, sky lit dining and a central kitchen equipped with Blanco/Miele appliances. French doors extend to a garden of impressive depth and parking via rear right of way. Upstairs three bedrooms and a children's study/retreat (or four; one currently converted to ensuite/WIRs) include a substantial main with balcony access. Lock up garage with second street frontage to Martin Street. Hydronic heating. Security. This tightly held residence on a 50 m deep block is now poised for immediate enjoyment or contemporary refinement, STCA, in a position loaded with lifestyle advantages.
Enquire about this property
Request Appraisal
Welcome to South Melbourne 3205
- Median House Price- $1,500,000
- 2 Bedrooms- $1,289,167
- 3 Bedrooms- $1,764,667
- 4 Bedrooms- $3,099,501
South Melbourne, situated just 2 kilometres from the heart of Melbourne’s CBD, is a vibrant and historic suburb known for its unique blend of cultural heritage, contemporary living, and dynamic community atmosphere.













