Sold46 Malin Street, Kew
An Elevated Family Lifestyle
The renovations and rear extension have delivered a stylish interior to this elevated tuck-point brick Edwardian semi-detached home. Delivering an instantly appealing contemporary living environment enhanced by its highly desirable location on the fringe of the Sackville Ward; within walking distance of an array of Melbourne's finest schools and close to Kew Junction, Glenferrie Road's fashionable shops, restaurants, cafes, the new Recreation Centre or Lido cinema plus transport options to the CBD and Kellet Reserve - all providing highly sought-after lifestyle amenities.
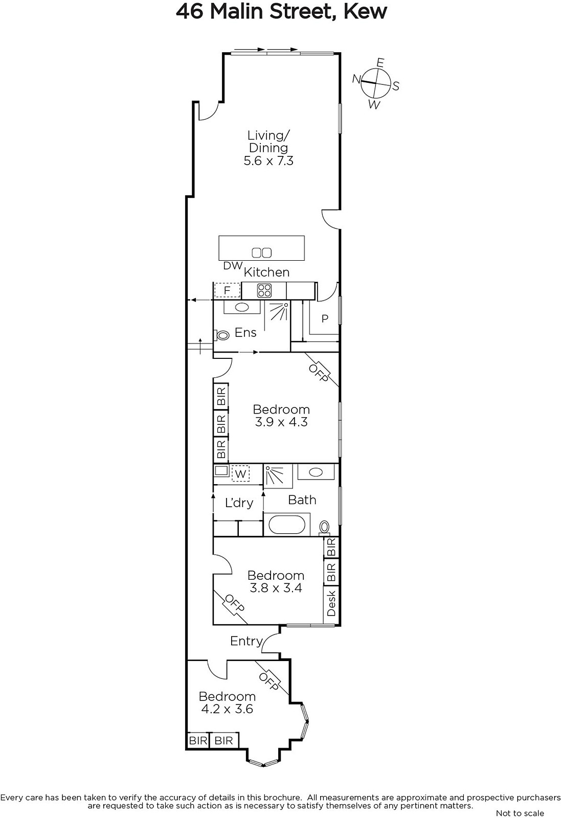
As one-of-a-pair it has an instantly appealing complementary façade, whilst the interior features retained subtle period attributes matched to the newer contemporary changes internally; highlighted by fixtures and fittings of the highest quality which reinforce the standard the renovations delivered. A Baltic Pine hallway with timber fretwork arch leads to three generous bedrooms, all with BIRs, main with a pristine ensuite, family bathroom and concealed laundry. Plus an expansive family living and dining area serviced by a sleek CaesarStone kitchen with island bench, WIP and prestige Miele appliances with a glass wall and sliding doors flowing to a deck and lush rear garden lined with mature ornamental trees. Providing a tranquil oasis for outdoor dining and relaxation. Other features include alarm, ducted heating and air conditioning, OFPs, ample storage including under floor/cellar, auto irrigation system, remote gate and off-street parking.
Enquire about this property
Request Appraisal
Welcome to Kew 3101
Median House Price
$2,666,500
2 Bedrooms
$1,575,000
3 Bedrooms
$2,173,500
4 Bedrooms
$2,926,250
5 Bedrooms+
$4,580,000
Kew, positioned just 5 kilometres east of Melbourne's CBD, is renowned for its sophistication and elegance.














