Sold46 Durham Road, Surrey Hills
"Durham Cottage" - c1906
Inspections By Private Appointment only. Contact Agent to book an inspection.
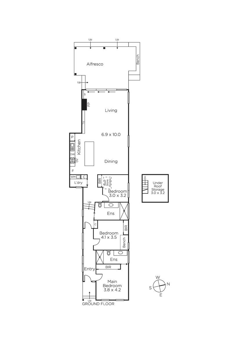
The classic exterior of this picturesque Edwardian residence presents an appealing first impression while the interior dimensions defined by an exhilarating blend of period elegance and designer style deliver the "Wow" factor.
Decorative fretwork and high ceilings are paired with ultra-wide oak floors through the entrance hall which introduces a beautiful main bedroom with built in robe and stunning en suite, a second bedroom with robe and day bed, flexible third bedroom or home office with robe and a stylish bathroom. Soaring 3.7m ceilings accentuate the scale of the open plan living and dining room with a gas fire and striking black gourmet kitchen appointed with Dekton benches, European appliances and integrated fridge/freezer. Stacking glass sliders open the living completely to a large, covered BBQ deck with seating and the deep private northwest landscaped garden.
Enviably situated with in the coveted English Counties Estate close to great schools, Canterbury station, Maling Rd, Riversdale Rd trams and McKillop Reserve, it includes video intercom, ducted heating, RC air-conditioning, ceiling fan, double glazing, remote blinds, laundry, pull-down attic storage, irrigation and auto front gate.
Land size: 438sqm approx.
Enquire about this property
Request Appraisal
Welcome to Surrey Hills 3127
Median House Price
$2,299,583
2 Bedrooms
$1,306,667
3 Bedrooms
$1,925,000
4 Bedrooms
$2,340,833
5 Bedrooms+
$3,045,000
Surrey Hills, a prestigious suburb located approximately 11 kilometres east of Melbourne’s CBD, epitomises gracious living with its leafy streets, heritage homes, and a strong sense of community.
















