Sold46 Argyle Road, Kew
Designer Excellence, Desirable Position
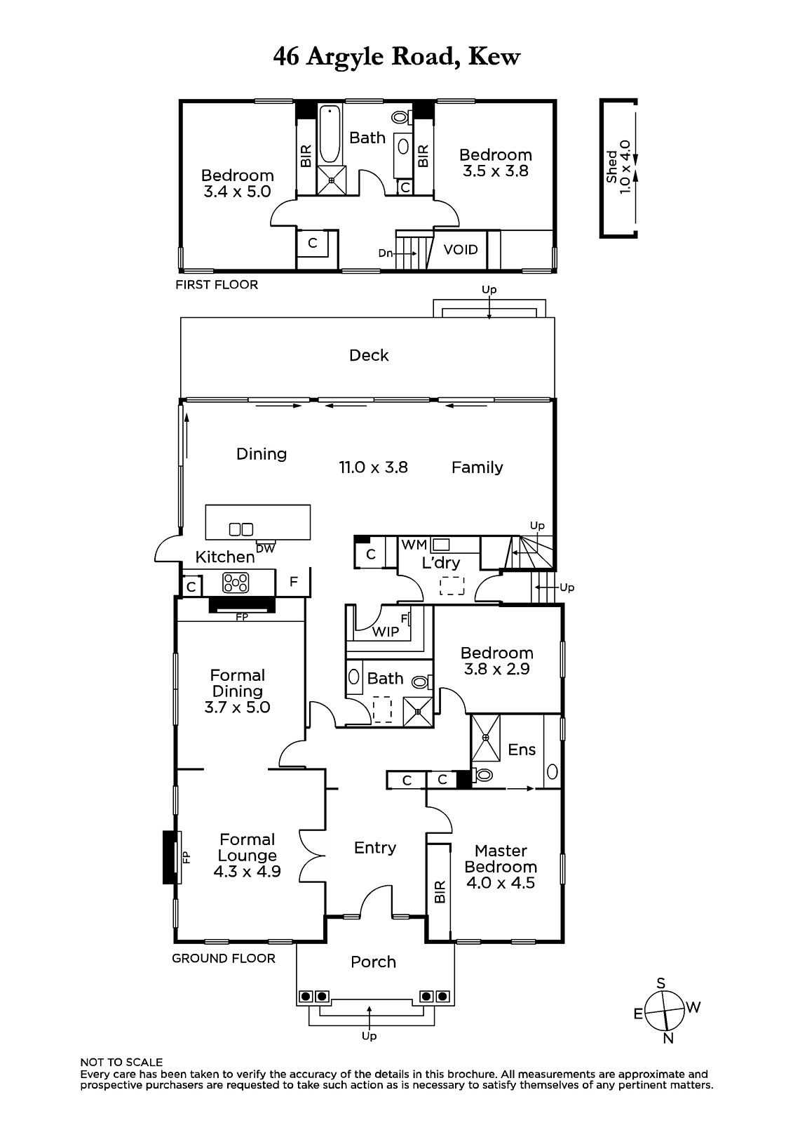
The beautiful Eckersley designed landscaped garden setting and the captivating original elegance of this solid brick Art Deco residence create an irresistible first impression that is more than matched by a sensational architect designed renovation and extension.
The exquisite charm of the Deco era is highlighted by ornate ceilings and decorative windows in the ample entrance hall, glorious sitting room and separate formal dining room both with gas fireplaces. Full width sliding glass doors frame picturesque, leafy garden outlooks from every aspect of the expansively proportioned living and dining room served by a sleek premium Miele kitchen complete with stone benches and butler's pantry. A tranquil setting for outdoor dining, the lush private gardens feature a large BBQ terrace and wide deck. The generous main bedroom with built in robe and chic en-suite, a study or 4th bedroom and stylish bathroom are serenely set on the ground level while a children's zone upstairs comprises two additional double bedrooms with built in robes and a third bathroom. A great family home with a childcare centre, kindergarten and cafe on the street.
In a coveted location close to a range of schools, Victoria Park, High St and Cotham Rd trams and Harp Village, this attractive home also includes an alarm, remote blind, laundry, water tanks, auto gates and off street parking for 3 cars.
Enquire about this property
Request Appraisal
Welcome to Kew 3101
Median House Price
$2,666,500
2 Bedrooms
$1,575,000
3 Bedrooms
$2,173,500
4 Bedrooms
$2,926,250
5 Bedrooms+
$4,580,000
Kew, positioned just 5 kilometres east of Melbourne's CBD, is renowned for its sophistication and elegance.


















