Sold430A South Road, Moorabbin
Joyful Al fresco Privacy
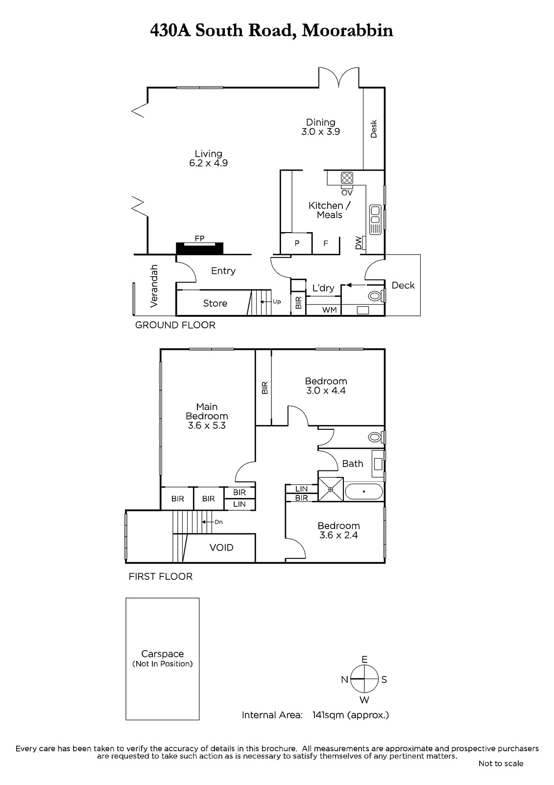
An open, airy and delightfully uplifting residence that welcomes natural sunlight from the north and the east, this beautiful, three bedroom, double story home sits joyfully behind the privacy of a high brick fence and lush established trees. Superbly presented and with two outdoor living areas, the home indulges you with a wonderful indoor-outdoor connection in a central position that is near fine cafes, shopping and plenty of transport.
With huge concertina doors that open to the north-facing privacy of a tree-surrounded front garden and more French Doors that open to a deck that basks in morning sun, the lounge and dining area is both particularly spacious and warmly welcoming with timber floors, a built-in desk and an open fire place. The home's hub is its central kitchen, whilst the bedrooms are all set upstairs, equipped with built-in robes and conveniently adjacent to a family-friendly bathroom. Added bonuses include rear parking, a downstairs powder room, laundry, volumes of storage and ducted heating.
Walk comfortably to shops, cafes and bars at Moorabin Village which is just down the road, plus you have expanses of parkland almost next door and city-bound trains from Moorabin Railway Station.














