Sold43 Studley Road, Brighton East
Parkside Indulgence in Prized Bayside Locale
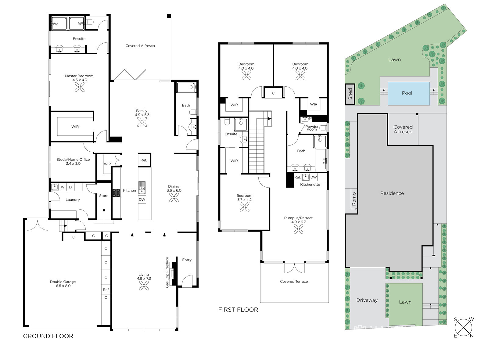
Overlooking acres of tranquil parkland, and flooded with northerly light, this impressively appointed four-bedroom family residence on 761sqm (approx.) is designed for effortless indoor/outdoor resort-style living and entertaining in a prized pocket of Brighton East.
Privately set behind a security gate with video intercom access, the generously proportioned contemporary home offers a flexible layout with spacious zoned indoor and outdoor living options over two levels. A light-filled ground level lounge area, with gas log fire at the front of the home incorporates expansive views of Dendy Park, which are matched in the upstairs living area, with kitchenette and covered alfresco balcony. Timber flooring flows throughout the ground level open plan living area and the gleaming central kitchen immediately impresses with stone and stainless steel benchtops, Smeg 900mm freestanding cooker, and walk-in pantry. There is an upstairs and downstairs option for the master bedroom suite, and there are four marble bathrooms, including two ensuites, with the downstairs ensuite fitted with an indulgent Dib auto bidet, plus there is a separate home office, laundry, and powder room. The rear alfresco area is seamlessly accessed by glass stacker sliding doors that open to an undercover terrace with sparkling fully tiled plunge pool set in bluestone surrounds, within a lush lawn area and established gardens.
Includes double remote auto garage with workshop area, additional, rear driveway access from Arnold Street, plenty of storage and internal access, high tech video security, central heating and air conditioning, garden irrigation system and outdoor lighting.
With the amenities of Dendy Park and Brighton Public Golf Course literally at your doorstep, this outstanding family-friendly Bayside address is a short walk to Hampton Street cafes, Haileybury College and St. Leonards College, with Brighton Beach, Church Street, Bay Street all just a few minutes away.
Enquire about this property
Request Appraisal
Welcome to Brighton East 3187
Median House Price
$2,104,500
2 Bedrooms
$1,530,000
3 Bedrooms
$1,805,000
4 Bedrooms
$2,332,750
5 Bedrooms+
$2,753,500
Known to be quieter than its neighbours, Brighton East is a highly sought-after location, blending community vibes, heritage aesthetics and a suburban charm that keeps locals loyal to its appealing beachside lifestyle.



















