Sold42a Gardiner Parade, Glen Iris
Quality Without Compromise
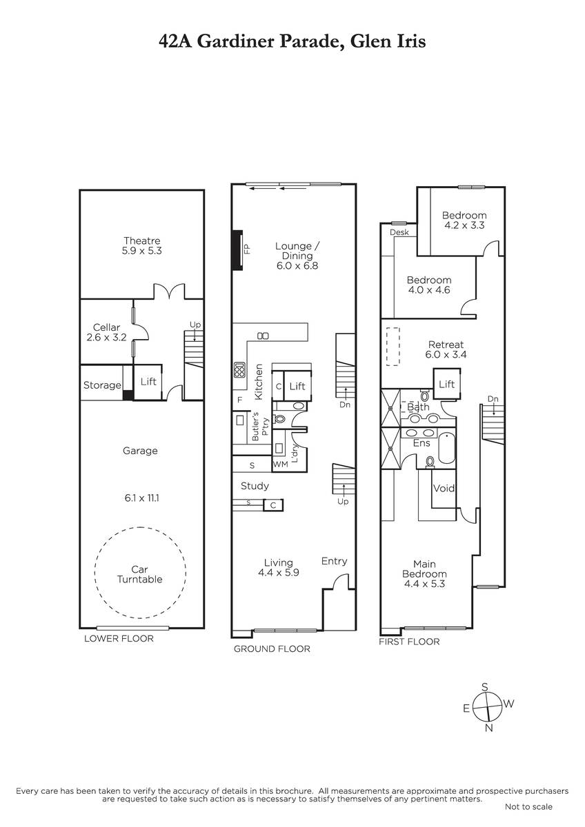
Due for completion in March 2022 and under the supervision of renowned o2 architects, this exclusive three bedroom plus study executive townhouse will be peacefully set in one of Glen Iris' preferred streetscapes, just metres from Gardiners Creek. Organised over three dramatic and elevator-connected levels of luxury, the home has been intelligently designed to blend contemporary design principles with a timeless sense of durability and is set to become an iconic example of 2020s architectural excellence. With rich and durable herringbone under foot, a vast open-plan kitchen / dining and semi-attached living is the home's visually striking heart. Warmed in winter by a broad gas fire place and opened-up via floor-to-ceiling glass sliding doors to a north-facing courtyard, the space is also suited to refined al fresco living, whilst gourmet cooks are sure to relish the combination of stone benches, a Neff oven / cooktop, Franke sinks and a brilliant Butler's Pantry. Downstairs, adjacent to the garage, a home theatre and wine cellar offer a level of lifestyle luxury that are rarely found, whilst on the top level, the master bedroom is enhanced by a vogue designer ensuite and large walk-in robes. Importantly, no corners will be cut in this home where central heating and air conditioning will offer year-round comfort and where secure video entry, CCTV surveillance and an alarm system offer wonderful peace-of-mind. Aside from the natural beauty of the local parkland, this sought-after position is just a few moments from terrific cafes, dining and shopping on High St and at Hartwell Village, whilst Glen Iris Railway Station is nearby for easy city commuting and the M1 Freeway is also convenient.
Enquire about this property
Request Appraisal
Welcome to Glen Iris 3146
Median House Price
$2,593,750
2 Bedrooms
$1,528,750
3 Bedrooms
$2,220,250
4 Bedrooms
$2,708,750
5 Bedrooms+
$3,823,500
Glen Iris, situated approximately 10 kilometres southeast of Melbourne's CBD, is a well-established and affluent suburb known for its leafy streets, spacious parks, and prestigious schools.












