Sold41 St Vincent Street, Albert Park
Nelson Cottage on St Vincent Street
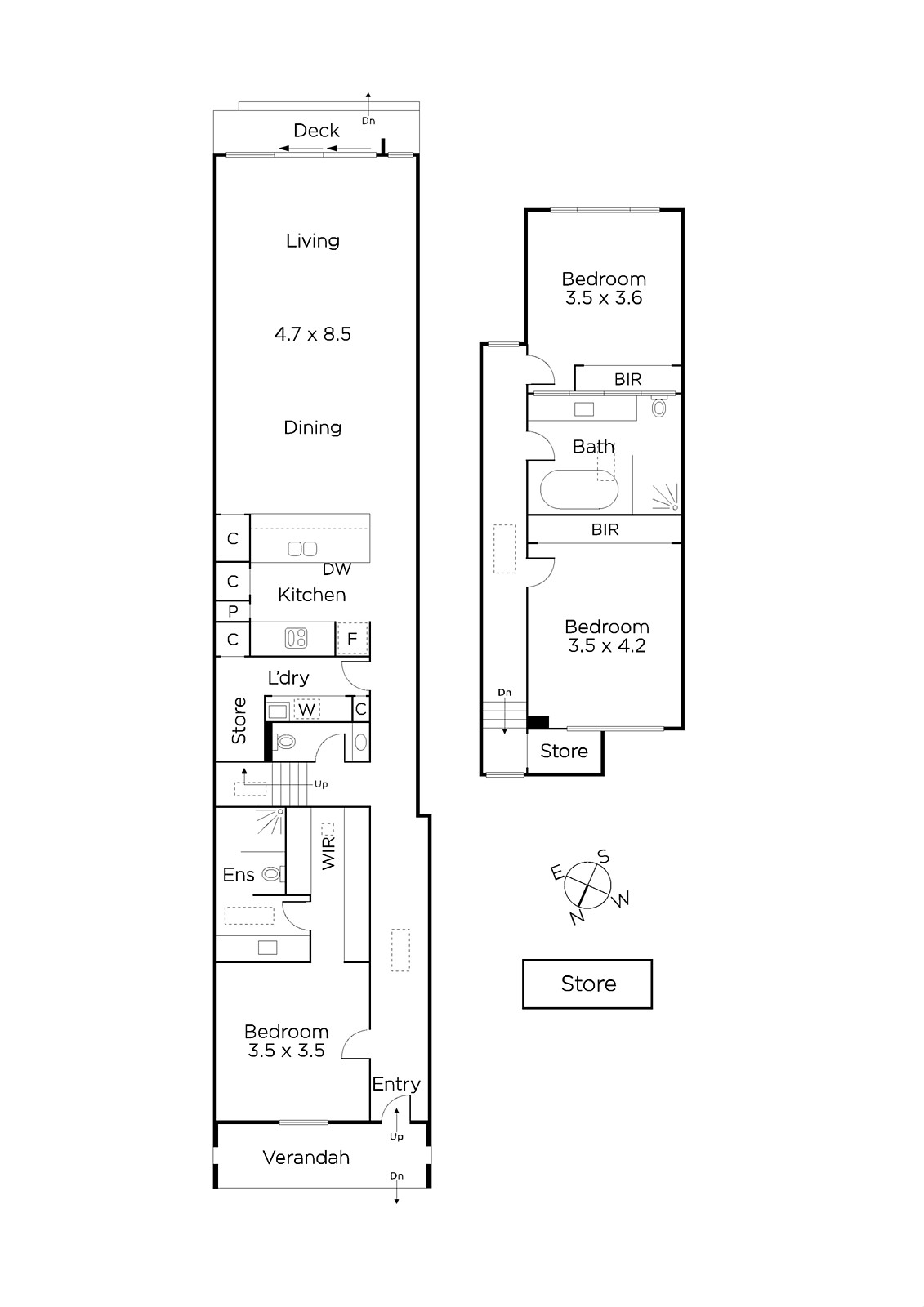
Classic solid brick Victorian, architecturally designed and newly renovated, this residence has resulted in a lavishly finished, superbly spacious, state of the art contemporary domain idyllically situated a short stroll from St Vincent Gardens, Albert Park Village, trams, schools, the market and the beach.
Meticulously built by Nik Spartels, the stunning interior features wide oak floors, Italian fittings, designer lighting and smart home technology. Wide oak floors flow through the sleek sky-lit hallway to an impressively large living and dining room with a sublime gourmet kitchen boasting Miele appliances. Double glazed, full width glass sliders open to a private landscaped bluestone paved garden courtyard with a wall of espaliered lemons and off street parking via the rear lane. The beautiful main bedroom with walk in robe and a designer en-suite is downstairs while two additional double bedrooms upstairs include built in robes and a stylish bathroom with freestanding bath.
Appointed to the highest standards, this captivating home also includes hydronic heating and refrigerated cooling, alarm, keyless entry, Sonos, remote blinds, USB points, powder-room, separate laundry and a garden shed.
Enquire about this property
Request Appraisal
Welcome to Albert Park 3206
Median House Price
$2,440,000
2 Bedrooms
$1,677,500
3 Bedrooms
$2,518,750
4 Bedrooms
$3,762,500
Albert Park, nestled just 3 kilometres from Melbourne’s CBD, is a picturesque suburb known for its blend of historic charm and modern amenities.















