Sold41 Fakenham Road, Ashburton
UNDER OFFER - Exceptional Family Home, Period Elegance
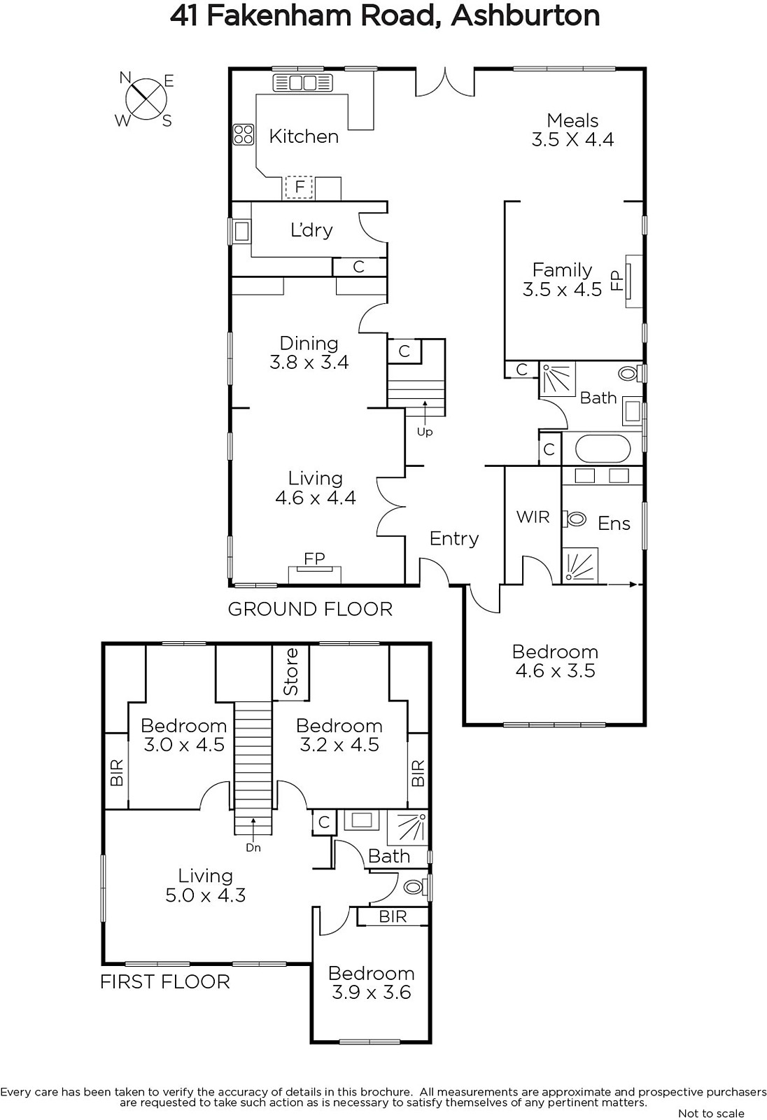
Privately poised amidst a serene garden setting stands a graceful, English inspired clinker brick home with exceptional proportions, tall ceilings and remarkable period features, offering 4 bedrooms on a generous 702sqm approx. allotment. Superbly located in a premier park-side pocket favored by families, just moments to first class amenities, transport and exceptional schools, this sizeable family home provides complete and comfortable accommodation, simply move in and enjoy. Behind its stunning façade lies elegant entertaining and casual living spaces, beautifully accompanied by ornate ceilings, leadlight windows, chandelier and open fireplaces, showcased throughout the entrance hall, exquisite formal sitting and dining room, plus generous master bedroom featuring walk-in robe and stylish ensuite. Extensive light-filled interiors further comprise; gourmet kitchen with stone benchtops, custom cabinetry and stainless steel appliances, informal living and dining leads out to the covered alfresco entertaining deck with heated spa, overlooking magnificent North orientated established gardens. Upstairs showcases 3 bright bedrooms with BIRs, third bathroom, separate toilet and rumpus posing panoramic leafy vistas of the Eastern suburbs, making it ideal for a teenage retreat. A home of exceptional substance featuring; ducted heating, cycle air-conditioning, modern central bathroom, separate laundry, Oak flooring, attic storage, security alarm, water tank (3000 lt), work shed, water feature and abundant off street parking. Close to Ashburton Park & Recreation Center, High Street precinct and walking distance to Ashburton Station, Ashburton Primary & Rowen Street Kindergarten.
Enquire about this property
Request Appraisal
Welcome to Ashburton 3147
- Median House Price- $1,867,167
- 3 Bedrooms- $1,561,666
- 4 Bedrooms- $2,093,333
- 5 Bedrooms+- $785,000
Ashburton, situated about 12 kilometres southeast of Melbourne's CBD, is a suburb that seamlessly merges its historical origins with modern living and a dynamic real estate market.












