Sold40A Stawell Street, Kew
Prime Studley Park Opportunity 998sqm approx
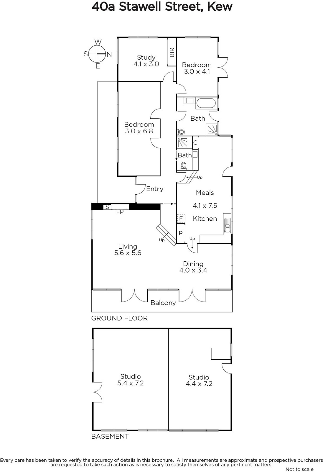
Exclusively situated in a prized Studley Park address just metres from the Yarra River, this iconic c1959 brick residence's evocative architectural style and substantial north-facing 998sqm approx. allotment provide a sensational opportunity to renovate and extend (STCA).
An striking river-stone feature wall spans the entrance hall which flows through to the expansive living and dining room boasting timber floors, an open fireplace and full width balcony. The well appointed bright kitchen and casual dining area opens to the north-facing leafy garden and terraces. Versatile accommodation comprises an extra large bedroom, two additional double bedrooms and two bathrooms. On the lower level and opening to the garden, two very spacious studios offer further flexibility. Offered for the second time since built, this distinctive home also includes Euro-laundry, garden shed and off street parking.
Enquire about this property
Request Appraisal
Welcome to Kew 3101
Median House Price
$2,666,500
2 Bedrooms
$1,575,000
3 Bedrooms
$2,173,500
4 Bedrooms
$2,926,250
5 Bedrooms+
$4,580,000
Kew, positioned just 5 kilometres east of Melbourne's CBD, is renowned for its sophistication and elegance.















