Sold40A Highland Avenue, Highett
Rare Air on Highland Reserve
Highland by Mancini Made is Highetts prestigious new address, offering only one landmark home and a luxury opportunity to buyers seeking to purchase the very best in residential living. Award-winning builder Mancini Made, past winners of the MBAV best townhouse development in Victoria, sets a new benchmark in Highett.
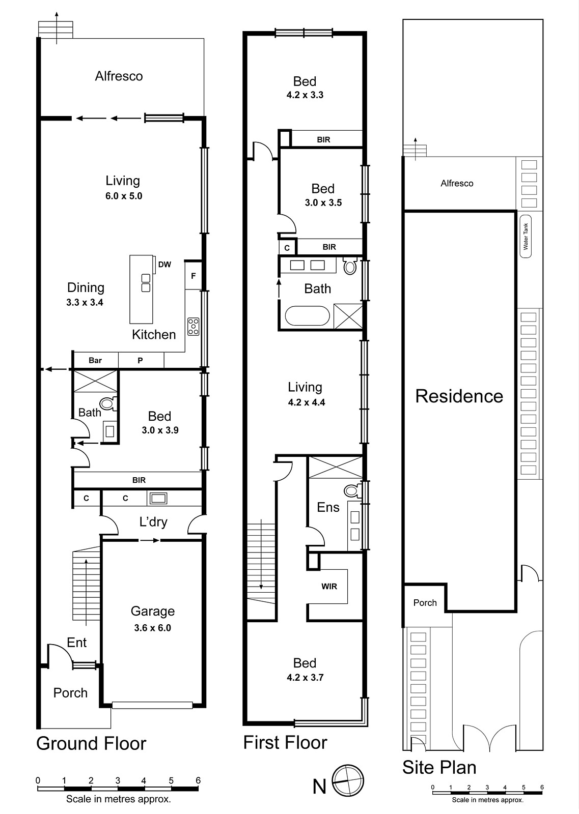
Highland embraces its peaceful, parkside location, soft white brickwork which forms part of a well distinguished front facade. Detailed in signature style, this four-bedroom home deliver ultimate luxury including Caesarstone benchtops, Fisher & Paykel appliances, soft-closing joinery and a personalised open wine bar! The expansive living area seamlessly opens up onto a stunning alfresco area which is perfect for entertaining and great balance of indoor/outdoor living.
An upstairs retreat maximises space and highlights lifestyle flexibility, whilst showcasing extraordinary natural light and attention to detail. From the gaping skylights, custom joinery throughout, every element has been meticulously chosen to create a dream family setting for many years to come.
Privileged by a prime Bayside location neighbouring Highland Reserve, the property is a short walk to Melbourne's best golf courses, Highett Village and Highett Station. Not to mention minutes from Baysides best beaches, trending dining destinations, Southland Shopping Centre & Southland Station - this location really has it all!
Features
- Palatial 4 Bedroom Residence (ground floor bedroom)
- Formal and Informal Living Zones
- Open timber feature staircase
- Polished concrete floors
- Fisher & Paykal Appliances
- Custom Winebar
- Refrigerated Air-conditioning & Heating
- Custom Joinery Throughout
- Free standing bath tub
- Turn key finish including landscaping
- By the Award Winning team Mancini Made
Enquire about this property
Request Appraisal
Welcome to Highett 3190
Median House Price
$1,476,250
2 Bedrooms
$1,253,750
3 Bedrooms
$1,405,750
4 Bedrooms
$1,597,000
5 Bedrooms+
$2,000,000
Highett, positioned 16 kilometres southeast of Melbourne, epitomises suburban comfort with its quiet streets and friendly atmosphere.









