Sold40 Lilydale Grove, Hawthorn East
Simply Stunning, Inside and Out
The instant appeal of the impressively spacious and stylish interior dimensions of this classic freestanding Victorian residence are immeasurably enhanced by absolutely stunning landscaped outdoor environs. The result is a sensational indoor/outdoor sanctuary of style close to both the Glenferrie Rd and Camberwell junction Shopping Precincts, the Rivoli, the Well, good schools and Auburn station.
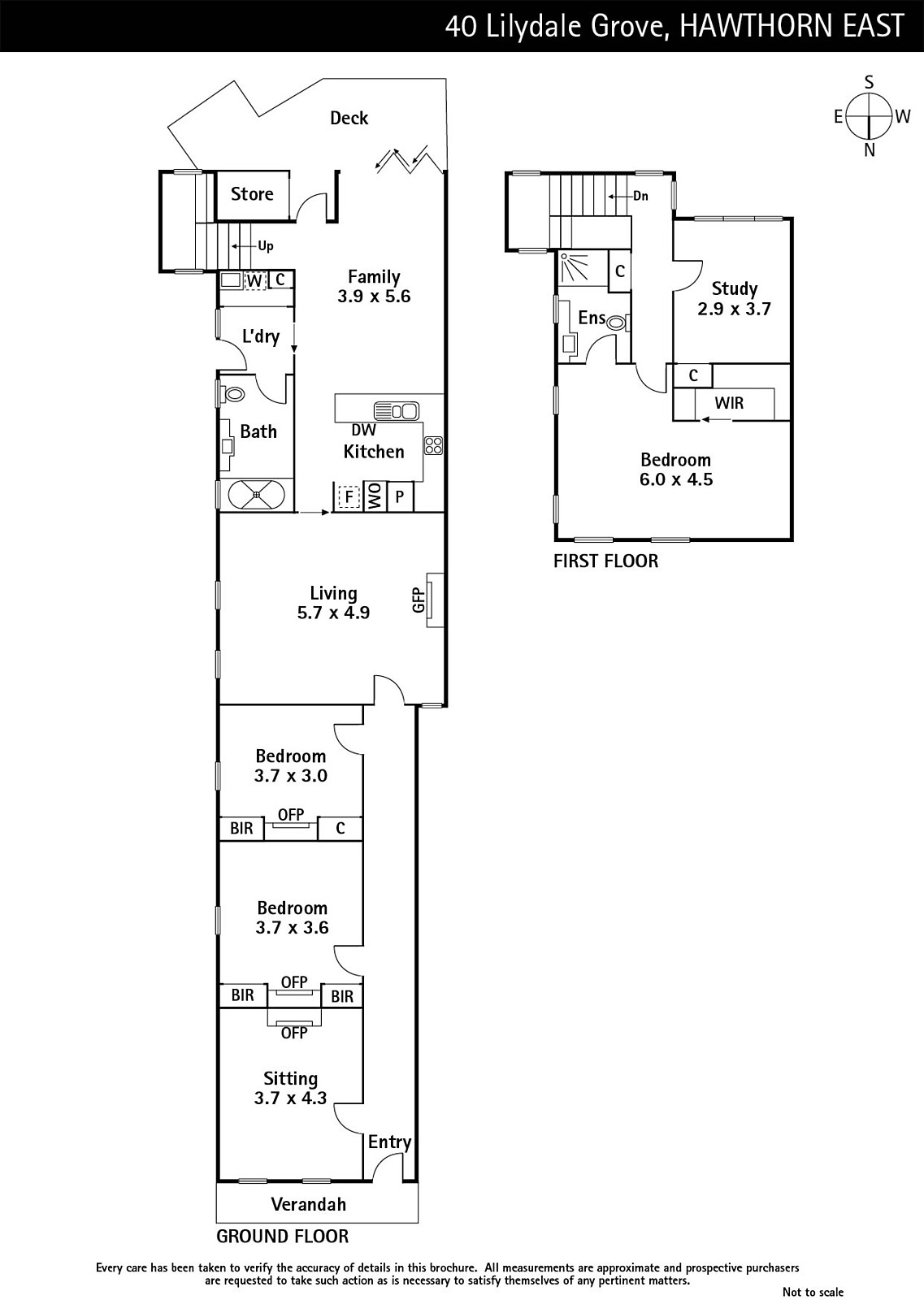
High ceilings and Baltic pine floors define the arched hallway, refined sitting room with open fireplace and generously proportioned living room with a gas fireplace. The sleek gourmet kitchen boasting stone benches and stainless steel appliances and a light-filled dining area open through bi-fold doors to the private landscaped garden with built in seating, water feature and a covered area designed for al fresco dining. Two beautiful bedrooms with open fireplaces and built in robes and an ultra stylish bathroom downstairs are matched upstairs by the main bedroom with walk in robe and designer en-suite and 4th bedroom or study.
Impeccably presented, it also includes RC/air-conditioning, alarm, Euro-laundry and secure carport via rear ROW.
Enquire about this property
Request Appraisal
Welcome to Hawthorn East 3123
Median House Price
$2,566,000
2 Bedrooms
$1,558,500
3 Bedrooms
$2,180,000
4 Bedrooms
$2,925,000
5 Bedrooms+
$4,157,500
Situated 7 kilometres east of Melbourne's centre, Hawthorn East offers a coveted mixture of greenery, historic charm, and modern amenities that cater to a wide range of preferences and lifestyles.













