Sold4 Woodmason Street, Malvern
Significant Scope In An Elite Setting
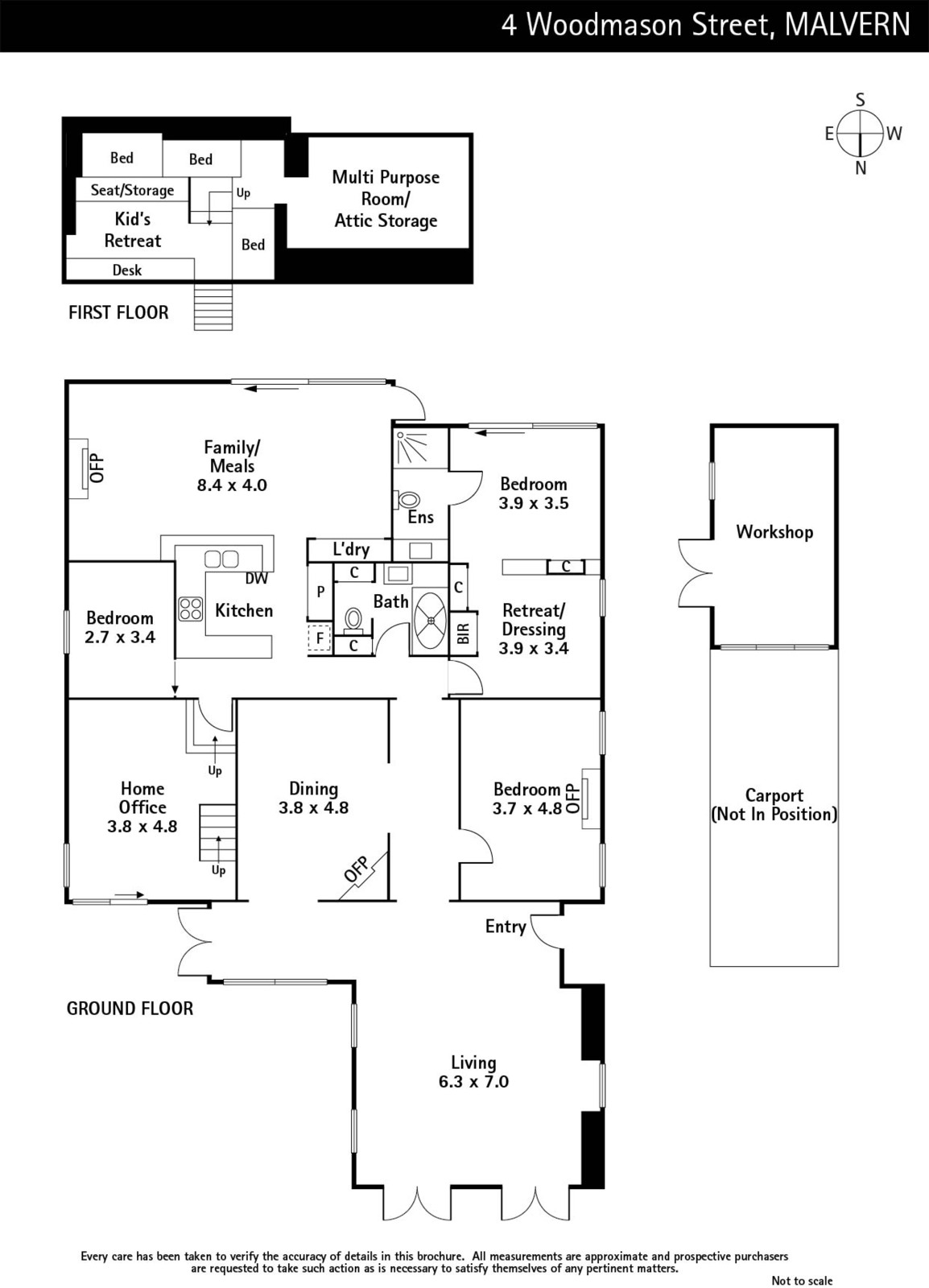
One of Malvern's most desirable addresses, a quiet cul-de-sac close to tram routes to several leading schools and the city. An ideal context for making the most of this allotment's attractive dimensions. Tempting width and depth inspire ideas for pursuing new home site plans or considering dual townhouse development concepts, STCA; a location where the lifestyle rewards and the investment returns will be equally reliable. Alternatively, apply the renovation process to the present day home, which features up to five bedrooms and two bathrooms with a flexible floor-plan. A large north facing entertaining area, versatile formal rooms, a large loft, central kitchen with marble benches and a Paul Bocuse oven and a family room that opens to the rear garden retreat provide perfectly functional spaces, with hydronic heating for added comfort. Carport and storage complete today's picture - tomorrow is all about possibilities.
Enquire about this property
Request Appraisal
Welcome to Malvern 3144
Median House Price
$2,990,083
2 Bedrooms
$2,106,667
3 Bedrooms
$2,454,667
4 Bedrooms
$3,357,084
5 Bedrooms+
$4,654,999
Malvern, located just 8 kilometres southeast of Melbourne's CBD, epitomises suburban sophistication and elegance.









