Sold4 St Vincent Place North, Albert Park
Potential In A Privileged Position
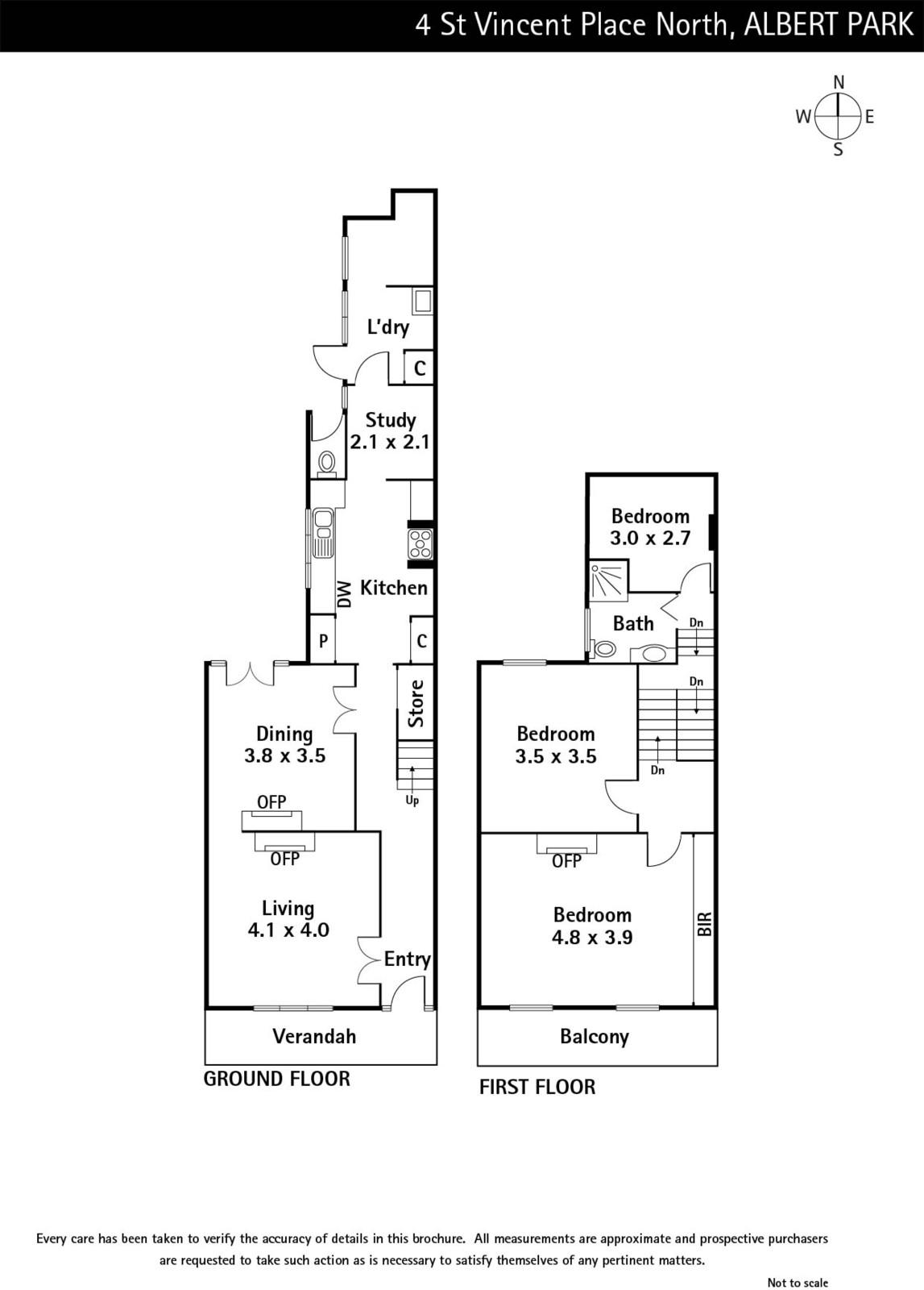
One of Melbourne's most desirable addresses, this classical BUCKINGHAM TERRACE residence, c1872, reveals an irresistible mix of rich period integrity and significant further potential. Entirely liveable today with ducted heating throughout - and for as long as desired - the current spaces include sitting and dining rooms of quintessential Victorian era charm each with an open fire-place. Beyond, a galley style kitchen and sky-lit retreat lead to a courtyard backdrop of pleasing depth, enhanced by the advantage of northerly aspect and rear lane access. Three upstairs bedrooms that surround a central bathroom include a main bedroom with the added feature of an air conditioner and fire-place, opening to a traditional balcony directly opposite the serene, green oasis of St Vincent Gardens. An un-missable opportunity to make the most of a coveted inner city setting.
Enquire about this property
Request Appraisal
Welcome to Albert Park 3206
Median House Price
$2,430,000
2 Bedrooms
$1,672,500
3 Bedrooms
$2,510,000
4 Bedrooms
$3,775,000
Albert Park, nestled just 3 kilometres from Melbourne’s CBD, is a picturesque suburb known for its blend of historic charm and modern amenities.











