Sold4 Frampton Street, St Kilda
Charming Victorian Entertainer
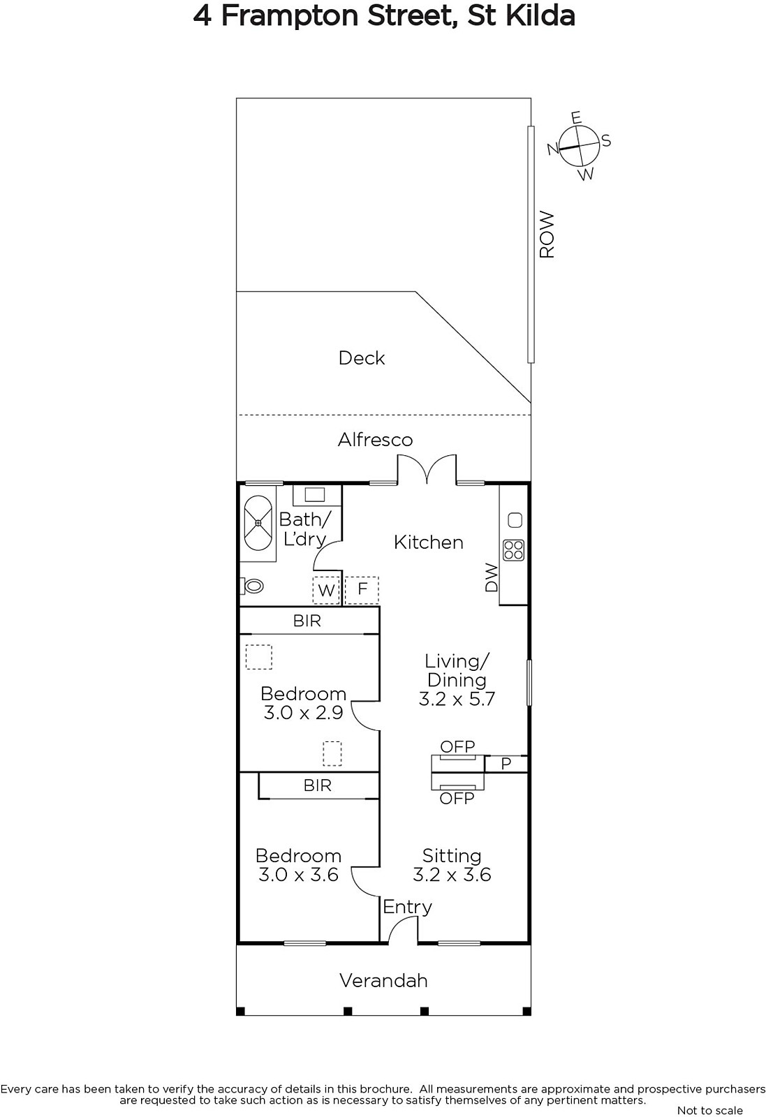
The sensational renovation of this classic c1880's Victorian residence has resulted in an impeccably stylish, light-filled single level domain close to the St Kilda, Windsor and Balaclava shopping and restaurant precincts and trams to the city.
Concrete look flooring adds a contemporary edge to the inviting living and dining rooms both featuring open fireplaces. The stunning kitchen boasting a blend of timber and stainless steel opens out to the spacious and private northeast garden with covered al fresco deck and off street parking via side lane. The two double bedrooms with built in robes are accompanied by a designer bathroom.
Perfect to just move in and enjoy, it also includes plantation shutters, attic storage and Euro-laundry.
Enquire about this property
Request Appraisal
Welcome to St Kilda 3182
Median House Price
$1,650,000
2 Bedrooms
$1,195,000
3 Bedrooms
$1,655,000
4 Bedrooms
$2,295,000
St Kilda, located 6 kilometres southeast of Melbourne’s CBD, is a vibrant seaside suburb known for its eclectic charm and rich cultural heritage.










