Sold4 Davis Avenue, Camberwell
Compelling Family Appeal
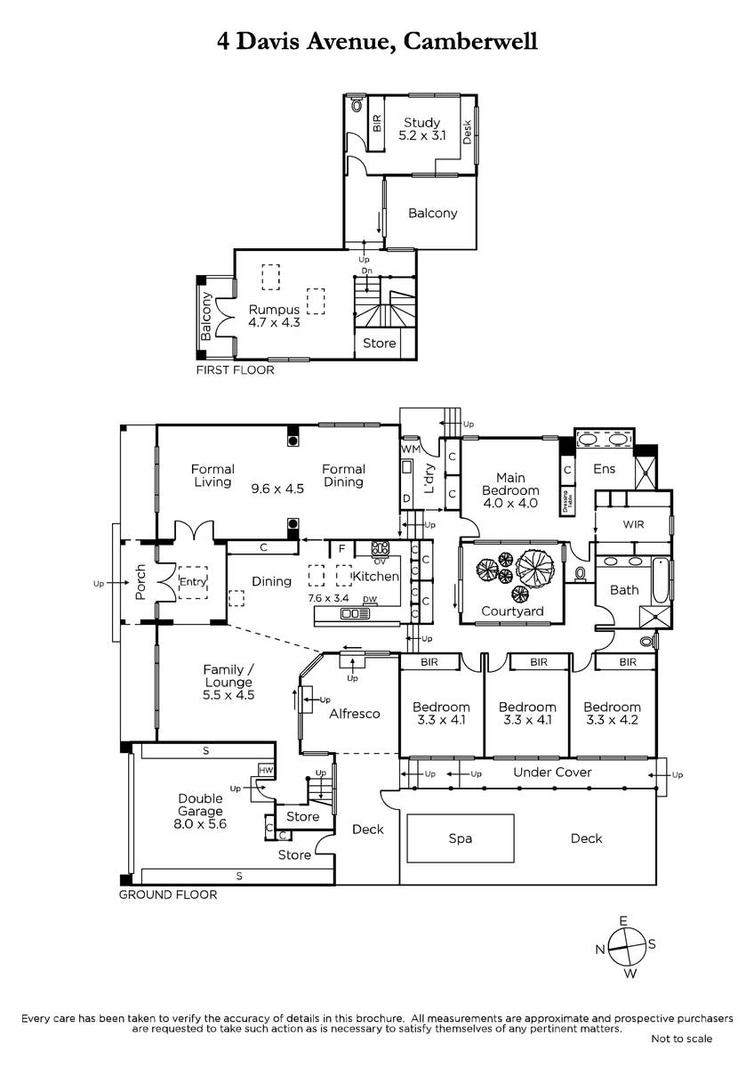
Impressively set behind a very broad frontage, with scope to renovate, rebuild or develop (STCA), this sensational contemporary residence's impeccably presented, exceptionally spacious and superbly zoned dimensions respond impeccably to modern family lifestyles within a low-maintenance context.
Beneath a sky-lit void, the entrance hall introduces expansive formal sitting and dining rooms featuring raked ceilings. Timber floors flow through the generous living room, family dining room and the gourmet kitchen boasting granite benches and a 90cm Ilve oven. The living spaces open to a private decked courtyard with a gas heated swim-spa. Overlooking a leafy central lightwell, the main bedroom with walk-in/built-in robes and designer en suite is in its own wing set apart from three additional bedrooms with robes and a stylish bathroom. Upstairs there is a large retreat, home office or 5th bedroom with powder-room and robe and a sundeck.
Enviably situated close to Burke Rd trams, cafes and shops, Tooronga Village, Camberwell Junction, excellent schools, Anderson Park and freeway access, it includes an alarm, CCTV, ducted heating/cooling, RC/air-conditioners, laundry, irrigation, garden lighting, internally accessed double garage and additional off street parking. Land size: 746sqm (22.3m x 33.5m) approx.
Enquire about this property
Request Appraisal
Welcome to Camberwell 3124
Median House Price
$2,605,000
2 Bedrooms
$1,521,000
3 Bedrooms
$2,244,500
4 Bedrooms
$2,830,166
5 Bedrooms+
$3,506,250
Camberwell, located just 9 kilometres east of Melbourne's CBD, stands out as a prominent suburb in the real estate market, renowned for its scenic, tree-lined streets and heritage-rich architecture.




















