Sold4 Beacon Vista, Port Melbourne
Waterfront Home feat. 4 bedrooms 2 car garage
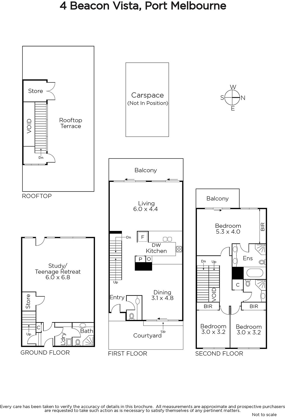
Arranged over three levels, this contemporary three-bedroom plus studio town residence features a restful blend of light and space, sea views from every room and a superb roof terrace highlighting 270-degree waterfront vistas of the city skyline and Port Melbourne pier. Skilfully designed, the middle floor encompasses a full-floor family living space comprising a stylish well-equipped kitchen with stone benches and Miele dishwasher as well as a balcony with bay views, presenting an array of entertaining options. A ground floor living space harbours the potential to serve as a formal sitting room, children's retreat, entertainment room, additional bedroom, office, granny flat, nanny accommodation or business space and is zoned for commercial use if required. Three generous bedrooms feature built-in robes, including an enchanting main bedroom complete with its own private terrace and sleek ensuite with separate shower and luxuriously proportioned bath. Impeccable appointments include polished boards, two additional bathrooms, powder room, laundry, heating and cooling, exceptional storage, multiple outside spaces, secure video side entrance, secure underground parking and residents' pool access all in a fantastic prime position on the cusp of Port Phillip Bay.
Situated moments from Port Melbourne foreshore and Garden City Reserve in addition to exceptional shopping and dining along Bay Street and Beacon Cove Village, this highly sought-after address in a tranquil cul-de-sac ten minutes from the CBD and with easy airport access is bound to satisfy all lifestyle needs. Transport options include an excellent light-rail network to the city and outstanding schooling at Port Melbourne Primary School, Albert Park College, St Michael's Grammar and Wesley College can be found close by.
Enquire about this property
Request Appraisal
Welcome to Port Melbourne 3207
Median House Price
$1,595,000
2 Bedrooms
$1,255,000
3 Bedrooms
$1,640,000
4 Bedrooms
$2,350,000
5 Bedrooms+
$2,524,000
Port Melbourne, located just 5 kilometres southwest of Melbourne's CBD along the shores of Port Phillip Bay, is a suburb that seamlessly merges its rich maritime history with contemporary urban living. This area is celebrated for its beaches, including Port Melbourne Beach and its historic piers, offering both leisure and a glimpse into the suburb and port origins.













