Sold4/24 Fulton Street, St Kilda East
Smartly Renovated with Lock up Garage
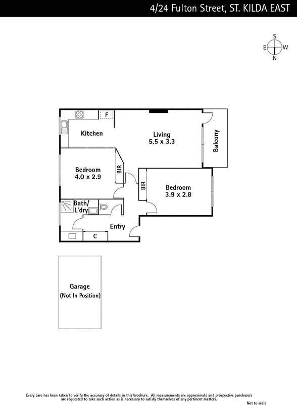
At the rear of a serene garden block, sharing an entry with only three others, this first floor apartment's smartly renovated spaces enjoy a perfectly private, secure setting ideal for a first home, investment or low maintenance lifestyle. Fashionable wideboard floors flow through the stylish proportions that reveals two double bedrooms, both with built in robes, a stunning monochrome stone kitchen with tiled splash back and gas cooker, a sleek bathroom with separate WC and spacious living/dining domain that opens to a secluded tree top balcony. Includes security intercom, laundry taps and the significant advantage of a lock up garage accessed via Johnson St. Within walking distance of the endless attractions of Carlisle St and Chapel St, trams to the CBD, whilst being peacefully removed when you need to escape with Alma Park just moments away. Perfect to just move in and enjoy this considerable lifestyle appeal.
Enquire about this property
Request Appraisal
Welcome to St Kilda East 3183
Median House Price
$1,720,750
2 Bedrooms
$1,069,500
3 Bedrooms
$1,676,000
4 Bedrooms
$2,100,000
5 Bedrooms+
$3,237,500
St Kilda West, set between the vibrant streets of St Kilda and the picturesque shores of Port Phillip Bay, offers a unique blend of beachfront allure and urban sophistication.









