Sold4/10 Waltham Place, Richmond
Rare, Genuine Richmond Warehouse
A conversion within a former 1800's boot factory has created this spacious and unique inner urban residence. Enviably situated in a quiet Richmond Hill cul de sac opposite Peppercorn Park, it provides immeasurable lifestyle appeal walking distance to the foodie lifestyle and retail precincts of Bridge Rd, Swan St, the city and the MCG.
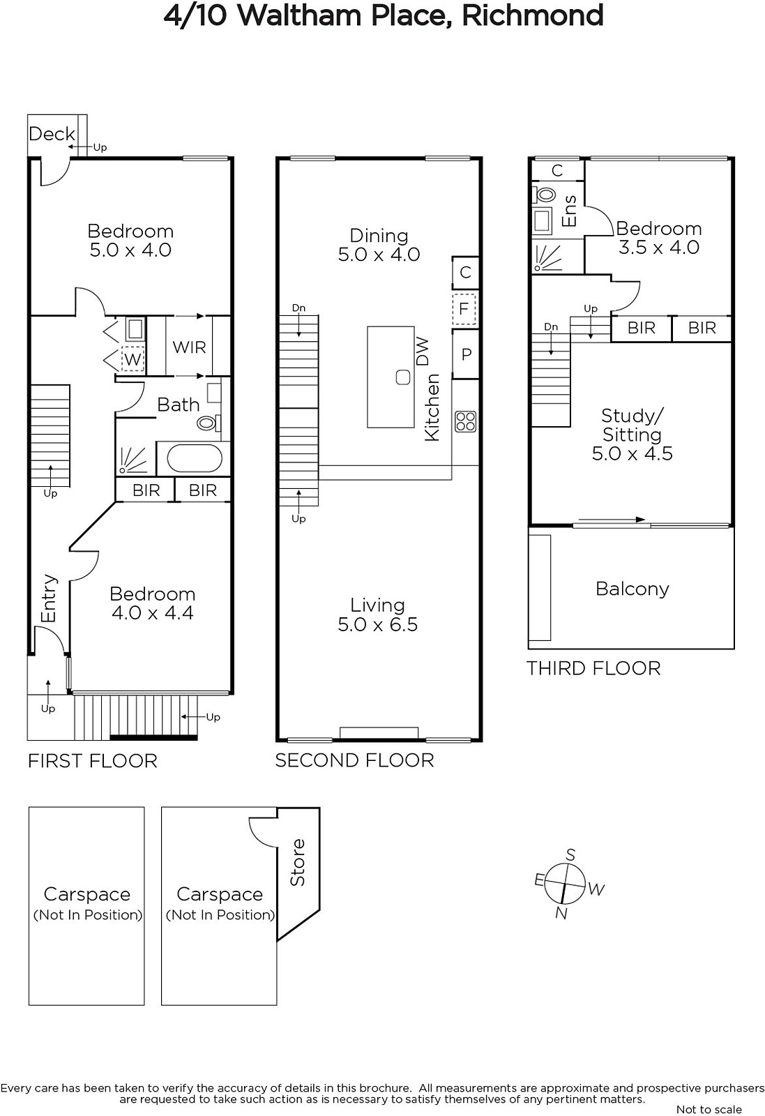
Behind the original brick and bluestone façade, the light-filled interior spaces feature extra high ceilings, wide original windows, exposed brick walls and polished concrete and timber floors. The living and dining spaces surround a functional kitchen featuring Miele appliances and stone and stainless steel benches. On the level above, a spacious bedroom with built in robe and en-suite is adjacent to a retreat opening out to a wide private roof terrace commanding wonderful views across the rooftops to the city, the Pelaco sign and the Ranges. Two very generous ground level bedrooms with robes and a bathroom access a private courtyard.
The ultimate inner urban sanctuary, it also includes RC air-conditioning, Euro-laundry, ample storage and 2 secure garage spaces.
Enquire about this property
Request Appraisal
Welcome to Richmond 3121
Median House Price
$1,395,167
2 Bedrooms
$1,175,000
3 Bedrooms
$1,564,833
4 Bedrooms
$2,100,000
Richmond is approximately 3 kilometres southeast of Melbourne's CBD, making it a conveniently located suburb for those looking to enjoy close proximity to the city's core while living in a vibrant community setting.















