Sold3A Beaufort Court, Ashburton
A Modern Gem in Beaufort Court
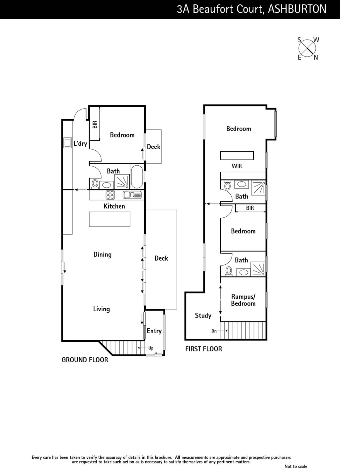
Nestled in a quiet rear position this architecturally designed contemporary home offers a sundrenched living area and four spacious bedrooms. Comprising: open plan lounge/dining with polished concrete floors opening onto alfresco, decked entertaining area and landscaped garden, gourmet chefs kitchen with Smeg appliances and stone bench tops, downstairs bedroom (BIR's) with seperate entrance, full bathroom and laundry with ample storage. Upstairs: master bedroom (ensuite & WIR), 3rd bedroom (BIR's), rumpus/4th bedroom, 2nd bathroom & study nook. Features include heating and cooling throughout, a double carport and water tanks this home encapsulates everything needed for a modern lifestyle.
Enquire about this property
Request Appraisal
Welcome to Ashburton 3147
- Median House Price- $1,867,167
- 3 Bedrooms- $1,561,666
- 4 Bedrooms- $2,093,333
- 5 Bedrooms+- $785,000
Ashburton, situated about 12 kilometres southeast of Melbourne's CBD, is a suburb that seamlessly merges its historical origins with modern living and a dynamic real estate market.










