Sold39 Hyslops Road, Main Ridge
"Minuburra"
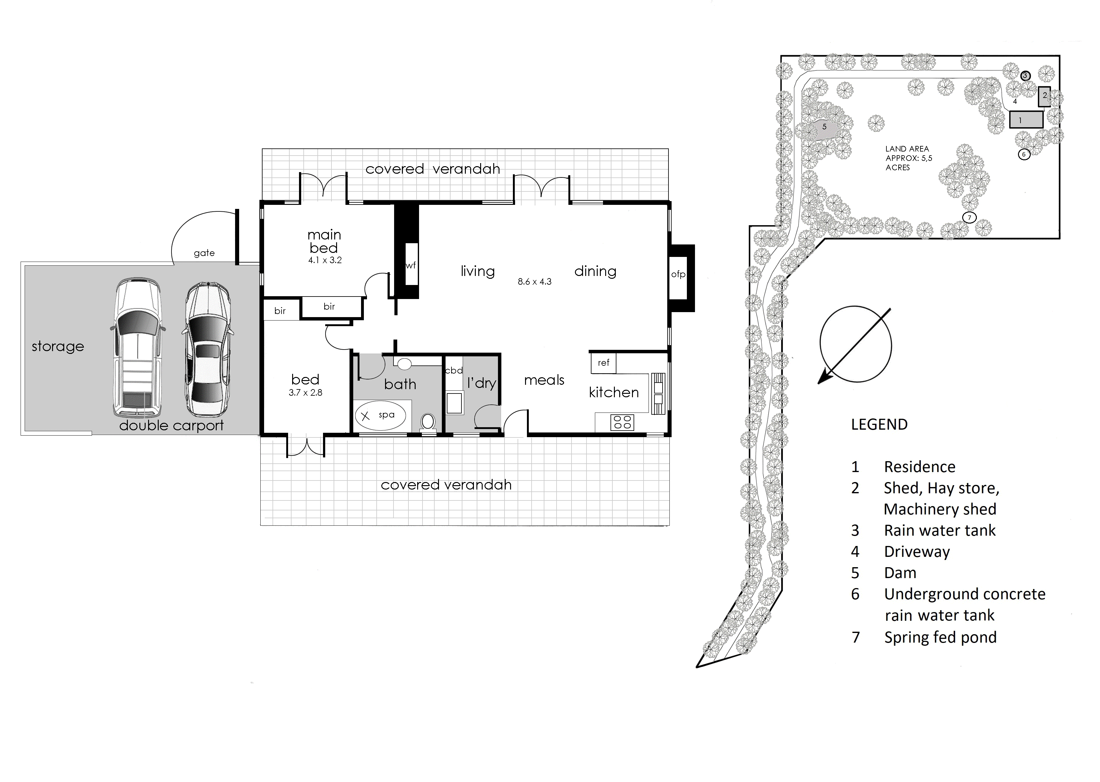
Nestled in tranquility and seclusion, "Minuburra" stands as a unique residence set far back from Hyslops Road. Situated on approximately 5.5 acres, this single-level two-bedroom home perfectly captures the essence of rural living while offering picturesque views of both the countryside and Port Phillip Bay.
Every room in the house provides enchanting vistas, creating a warm and inviting atmosphere. The living and dining area, adorned with a newly installed combustion wood fireplace, showcases breathtaking scenes extending from the surrounding countryside to the expanse of Port Phillip Bay. French doors open onto the verandah, serving as an ideal spot to witness the sunset over the Bay. The timber kitchen, featuring a freestanding stove, overlooks the property's serene trees and paddocks, creating a tranquil backdrop.
Two double bedrooms, each equipped with built-in robes, open up to the encompassing verandahs, and a central sky-lit bathroom with a spa bath caters to their needs. The property boasts various amenities, including a spring-fed pond, a dam, a double carport with storage space, a hay and machinery shed, fenced paddocks, and an abundance of wildlife.
Exclusively held and situated on the fringes of Greens Bush and the Two Bays Walking Trail, Minuburra fulfills the desire for a private and serene country retreat. Despite its remote ambience, it remains easily accessible to the peninsula's beaches, wineries, and restaurants. Offering the opportunity to embrace a secluded country lifestyle, this property is just a ten-minute drive from shops, cafes, and Peninsula Link.
Enquire about this property
Request Appraisal
Welcome to Main Ridge 3928
Median House Price
$3,210,000
Just 75 kilometres south of Melbourne's CBD, nestled on the Mornington Peninsula, Main Ridge is where rural charm meets upscale living.





















