Sold39 Hawthorn Grove, Hawthorn
Stylish Sophistication in a Serene Setting
Inspect by appointment only
An exquisite slate-roofed Hawthorn brick Victorian Italianate residence standing in professionally landscaped gardens on the north side of one of Hawthorn's finest streets.
The meticulous restoration of the tuck-pointed facade and tessellated tile return veranda hint at the attention to detail evident throughout the exacting renovation of the stately original principal rooms, while an inspired extension lends another dimension to the house, complementing the grace and charm of the 1880's with contemporary comforts and conveniences to create a truly unique family home.
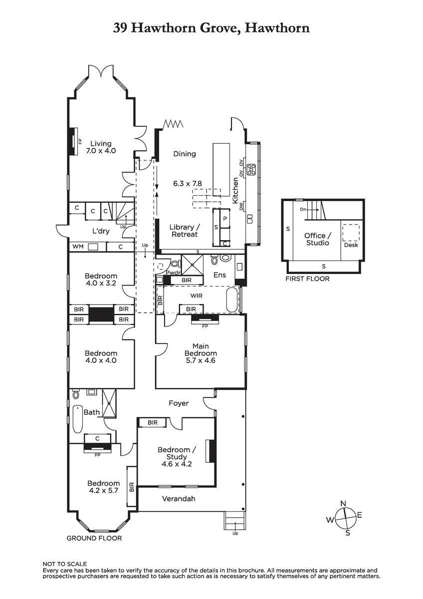
Focused on the sleek, fully automatic swimming pool, alfresco entertaining area, and private, sheltered rear garden, the generously proportioned principal rooms include spacious living and dining areas, an intimate library/retreat, grand master suite with sumptuous marble ensuite, and fitted dressing room, four further double bedrooms, study, luxurious family bathroom, fully appointed kitchen, guest powder room and fitted laundry/utility room.
An automatic front gate provides convenient access to secure parking for two cars at the front of the property with additional space for two more to be accessed from the wide rear ROW if desired.
Land size: 898sqm approx.
Enquire about this property
Request Appraisal
Welcome to Hawthorn 3122
Median House Price
$3,010,000
2 Bedrooms
$1,690,000
3 Bedrooms
$2,110,000
4 Bedrooms
$3,525,000
5 Bedrooms+
$6,500,000
Hawthorn, approximately 6 kilometres east of Melbourne’s CBD, is an affluent and vibrant suburb known for its rich history, beautiful parks, and prestigious educational institutions.

























