Sold39-41 Molesworth Street, Kew
Exclusivity, Privacy and Prestige at its Finest
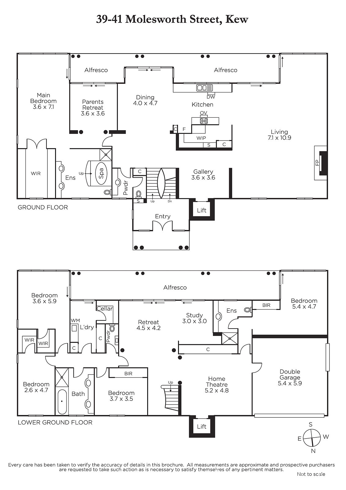
Behind a secure gated entrance and manicured garden entrance on one of Kew's most esteemed boulevards, this classically inspired mansion offers breathtaking panoramas of the surrounds and twinkling cityscape views to the west. Designed for entertaining, with a range of ages and stages in mind, distinct living zones have been arranged to offer excellent outdoor connection with the priceless backdrop of a landscaped garden, undercover alfresco terrace, sun deck and sparkling pool. Brilliant separation between the main bedroom suite and four additional bedrooms, including a sizeable guest ensuite bedroom, confirms both privacy and flexibility, with plenty of space for growing families. Parking for several vehicles and a large double garage complete the practicalities.
Four bedrooms are arranged on the ground floor alongside two elegant bathrooms and a powder room, complemented by an open plan style lounge room, study and library. Upstairs, adjacent to a brilliant balcony, are the more formal living and dining rooms and the open plan family room with flexible zones for dining, media, study or music as desired. The main bedroom suite comes complete with its own study or living zone, while ample built in robes and a luxurious spa ensuite deliver every expected luxury.
Imagine the lifestyle possible with Yarra Boulevard and Studley Park just moments away, Kew Junction for a wonderful selection of cafes, restaurants, bars and shopping, as well as brilliant transport links and a host of excellent schools.
Land size: 1200sqm (approx.)
Enquire about this property
Request Appraisal
Welcome to Kew 3101
Median House Price
$2,676,500
2 Bedrooms
$1,475,000
3 Bedrooms
$2,110,000
4 Bedrooms
$2,870,500
5 Bedrooms+
$4,680,000
Kew, positioned just 5 kilometres east of Melbourne's CBD, is renowned for its sophistication and elegance.
























