Sold38 Karnak Road, Ashburton
Remember the Fifties and Consider the Options
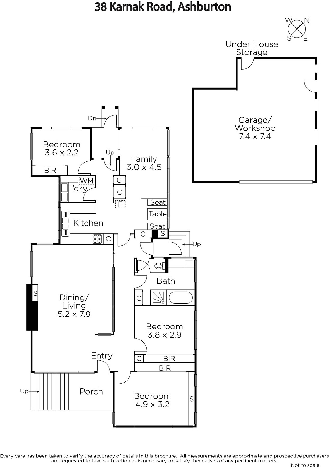
This classic mid 1950s elevated clinker brick home takes us on a trip down memory lane whilst offering an exceptional range of options including renovation or extending, new luxury home or lending itself perfectly to a multiple townhouse redevelopment (STCA). The home has been maintained in excellent condition but remains un-renovated by today's expectations. The light-filled interior is currently configured to include a large sitting and dining room combined, informal living room, three zoned bedrooms, period-style bathroom with separate WC, kitchen/meals and laundry; plus a deep rear garden with ample room to extend. Other features include ducted heating, gas heater, WeatherWall air conditioner (informal living), double garage, workshop and extensive under house/cellar storage. In addition buyers should note this home could be comfortably occupied or leased out while a decision is made on its future.
The value of this property is underpinned by a sought-after location in an area undergoing renewal, just moments from Solway Primary School & Estrella Kindergarten, close to the Gardiners Creek walking tracks - further enhanced by easy access to the Anniversary Trail, Ashburton shops, Chadstone Shopping Centre, public transport, excellent private or public schools and the CBD via CityLink - all providing a haven for growing families with wonderful recreation and lifestyle facilities at the doorstep.
Enquire about this property
Request Appraisal
Welcome to Ashburton 3147
Median House Price
$1,973,750
3 Bedrooms
$1,676,250
4 Bedrooms
$2,110,250
5 Bedrooms+
$2,260,000
Ashburton, situated about 12 kilometres southeast of Melbourne's CBD, is a suburb that seamlessly merges its historical origins with modern living and a dynamic real estate market.









