Sold38 Audrey Crescent, Glen Iris
A Surprise Awaits Inside
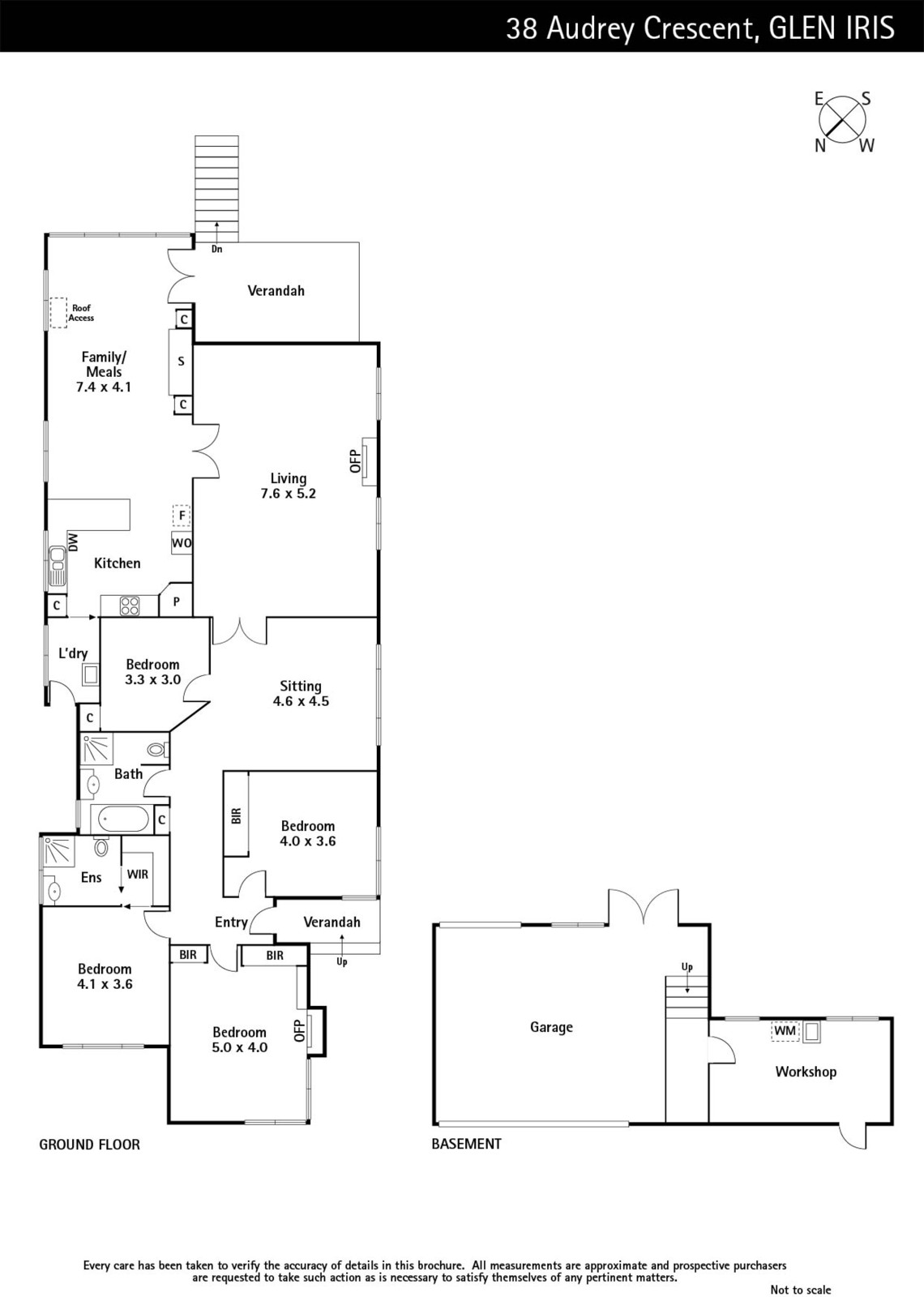
An understated façade introduces this deceptively spacious clinker brick home offering exceptional zoned family accommodation with plenty of flexibility for living and entertaining. Enhanced by a sought-after family friendly location in the Summerhill Estate precinct, just a few minutes' walk from Ashburton Shopping Centre, Station and bus services; close to Ashburton Recreation Centre, Primary or Glen Iris Primary, plus Leo's Fine Foods and easy access to an array of prestige schools or CityLink/CBD from High Street.
Set in neatly manicured and lush gardens the home features entrance hall, four bedrooms, main with WIR and ensuite, a pristine family bathroom plus generous living and/or dining areas, one with home cinema, a sleek Miele equipped kitchen and dining with adjacent laundry and leafy garden vistas. A covered deck overlooks the garden and lower level paved outdoor alfresco area. Other features include alarm, ducted heating, R/C air conditioner (living), extensive storage including garage roof & under house, watering system, remote double garage opening to the rear plus a workshop.
Enquire about this property
Request Appraisal
Welcome to Glen Iris 3146
Median House Price
$2,593,750
2 Bedrooms
$1,528,750
3 Bedrooms
$2,220,250
4 Bedrooms
$2,708,750
5 Bedrooms+
$3,823,500
Glen Iris, situated approximately 10 kilometres southeast of Melbourne's CBD, is a well-established and affluent suburb known for its leafy streets, spacious parks, and prestigious schools.













