Sold38 Albert Street, Port Melbourne
Timeless Charm, Modern Comforts
In a prized park-side position on the edge of every urban convenience, this single-level brick Edwardian offers an idyllic entry into a coveted lifestyle with its comfortable and light-filled interior and elite location within walking distance to the light rail, beach, and Bay Street's cafe, dining and shopping precinct.
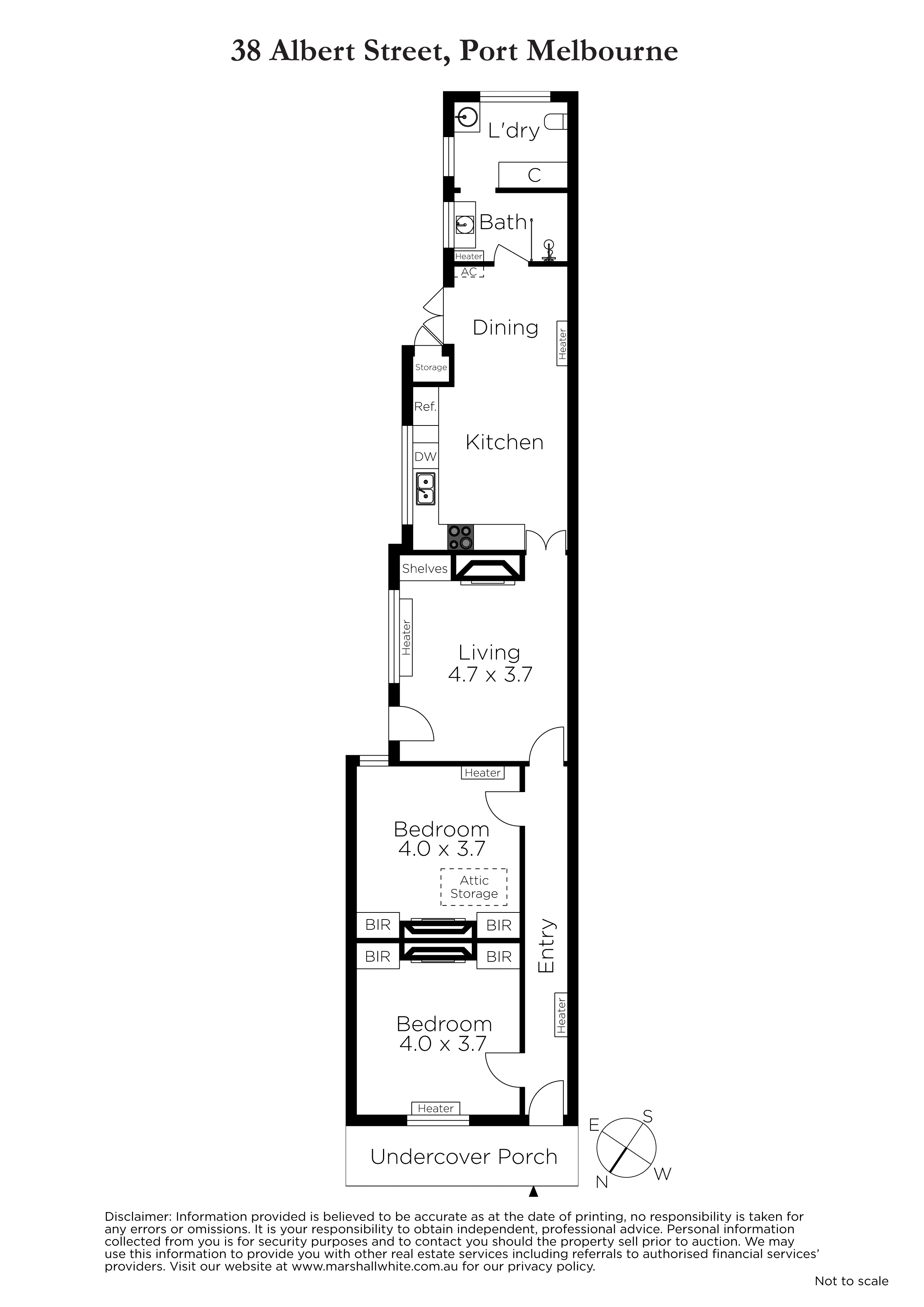
Unimposing from the street, the sunny floor plan is sure to impress, with a tessellated tiled verandah preceding high decorative ceilings, a corbel-arch hallway and a superb layout that spans a spacious living area and two generous bedrooms. Having undergone renovations in both the kitchen and bathroom areas, this residence exudes immediate comfort, yet holds promising potential for the future, offering the opportunity to enhance value or expand upward and outward to maximise the footprint (subject to council approval).
The kitchen with stainless steel appliances and stone benchtops provides modern ease, following the living room with an open fireplace and a casual meals area to the red brick rear terrace, the perfect spot for alfresco dining, bordered by low-maintenance greenery. A rear bathroom and large laundry with WC add to the appeal, as does hydronic heating, excellent storage space and rear pedestrian access to the ROW.
A perfect opportunity to enter the market with confidence, this tuck-pointed beauty is zoned to Port Melbourne Primary and Secondary Schools, and is an easy walk to cafes, bike trails, open parkland, city-bound trams and the beach.
Enquire about this property
Request Appraisal
Welcome to Port Melbourne 3207
Median House Price
$1,595,500
2 Bedrooms
$1,260,000
3 Bedrooms
$1,661,250
4 Bedrooms
$2,420,000
5 Bedrooms+
$2,524,000
Port Melbourne, located just 5 kilometres southwest of Melbourne's CBD along the shores of Port Phillip Bay, is a suburb that seamlessly merges its rich maritime history with contemporary urban living. This area is celebrated for its beaches, including Port Melbourne Beach and its historic piers, offering both leisure and a glimpse into the suburb and port origins.

















