Sold35 Baker Avenue, Kew East
Mid-Century Masterpiece In Need of a Makeover
At the cutting edge of design when it was built in the 1960's, this grandly proportioned (335sqm approx.) contemporary residence requires only imagination and effort to again be a local showpiece.
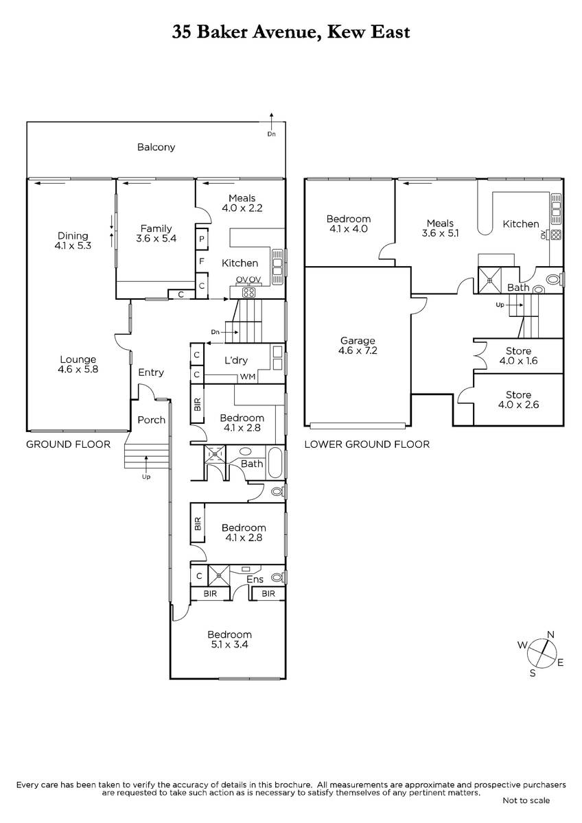
Constructed on a massive suspended concrete slab, of double brick construction throughout and set over two levels, it comprises on the main level an entrance hall, spectacular 11m long living and dining room, family room, main bedroom with ensuite, two further double bedrooms, three-zone bathroom, kitchen with adjacent meals area. Linked by a marble staircase, the lower level comprises a versatile vestibule area, second kitchen, living room, fourth double bedroom, bathroom, laundry, two storerooms and a huge double garage with direct internal access. Land: 650sqm approx.
See also 33 Baker Avenue Kew East: https://www.marshallwhite.com.au/1144144
Enquire about this property
Request Appraisal
Welcome to Kew East 3102
Median House Price
$2,300,000
3 Bedrooms
$2,150,000
4 Bedrooms
$2,330,000
Kew East, a serene and leafy suburb located about 8 kilometres from Melbourne's heart, offers a combination of community warmth and suburban tranquillity.

















